Type
Bien immobilierTarif
335 000 €Chambres
3Salles de bain
0Vente Maison traditionnelle 4 pièces
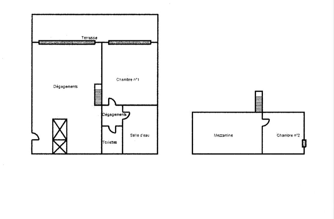
Iad France - Vanessa RAFFANEL vous propose : À Margon, charmant village viticole dominé par son château, découvrez cette maison de plain-pied construite en 2013, offrant 105 m² habitables auxquels s’ajoutent 22 m² d’annexes (garage traversant et buanderie). Elle dispose d’un vaste séjour lumineux de 54 m² avec cuisine équipée ouverte, ainsi que de trois chambres dont une avec dressing, d’une salle d’eau avec douche à l’italienne et d’un WC séparé. Le garage communique directement avec la maison et le jardin arrière. À l’extérieur, le jardin paysagé accueille une terrasse carrelée avec pergola, un terrain de pétanque et un cabanon. Son orientation sud-ouest assure une belle luminosité, tandis que les arbres offrent ombrage et fraîcheur en été. Côté confort : fibre optique, climatisation gainable dans l’espace nuit, console réversible dans le séjour, panneaux photovoltaïques, chauffe-eau neuf, porte de garage motorisée et système d’alarme Verisure. Nombreux rangements avec placards, mezzanine et dressing. Idéalement située : commerces et services de Roujan à proximité immédiate, école primaire dans le village, Pézenas à 15 minutes, Béziers à 20 minutes et les plages de Valras ou du Cap d’Agde à partir de 30 minutes. Un cocon chaleureux, prêt à accueillir sa nouvelle famille. Demandez la visite virtuelle ! Honoraires d'agence à la charge du vendeur. Information d'affichage énergétique sur ce bien : classe ENERGIE B indice 104 et classe CLIMAT A indice 3. Les informations sur les risques auxquels ce bien est exposé, y compris l'obligation légale de débroussaillement, sont disponibles sur le site Géorisques : http://www.georisques.gouv.fr. La présente annonce immobilière a été rédigée sous la responsabilité éditoriale de Mme Vanessa RAFFANEL mandataire indépendant en immobilier (sans détention de fonds), agent commercial de la SAS I@D France immatriculé au RSAC de Annecy sous le numéro 889574240, titulaire de la carte de démarchage immobilier pour le compte de la société I@D France SAS.
À proximité
Recherche des commodités à proximité...
Détails de l'annonce
Localisation
Ville
Margon
Pays
FR
Diagnostics / Énergie
Diagnostic DPE
104
Diagnostic GES
3
Chauffage et diagnostics
Diagnostic de performance énergétique (DPE)
a
b
c
d
e
f
g
Indice d'émission de gaz à effet de serre (GES)
a
b
c
d
e
f
g
