Type
Bien immobilierTarif
116 900 €Chambres
0Salles de bain
0Vente Studio 1 pièce
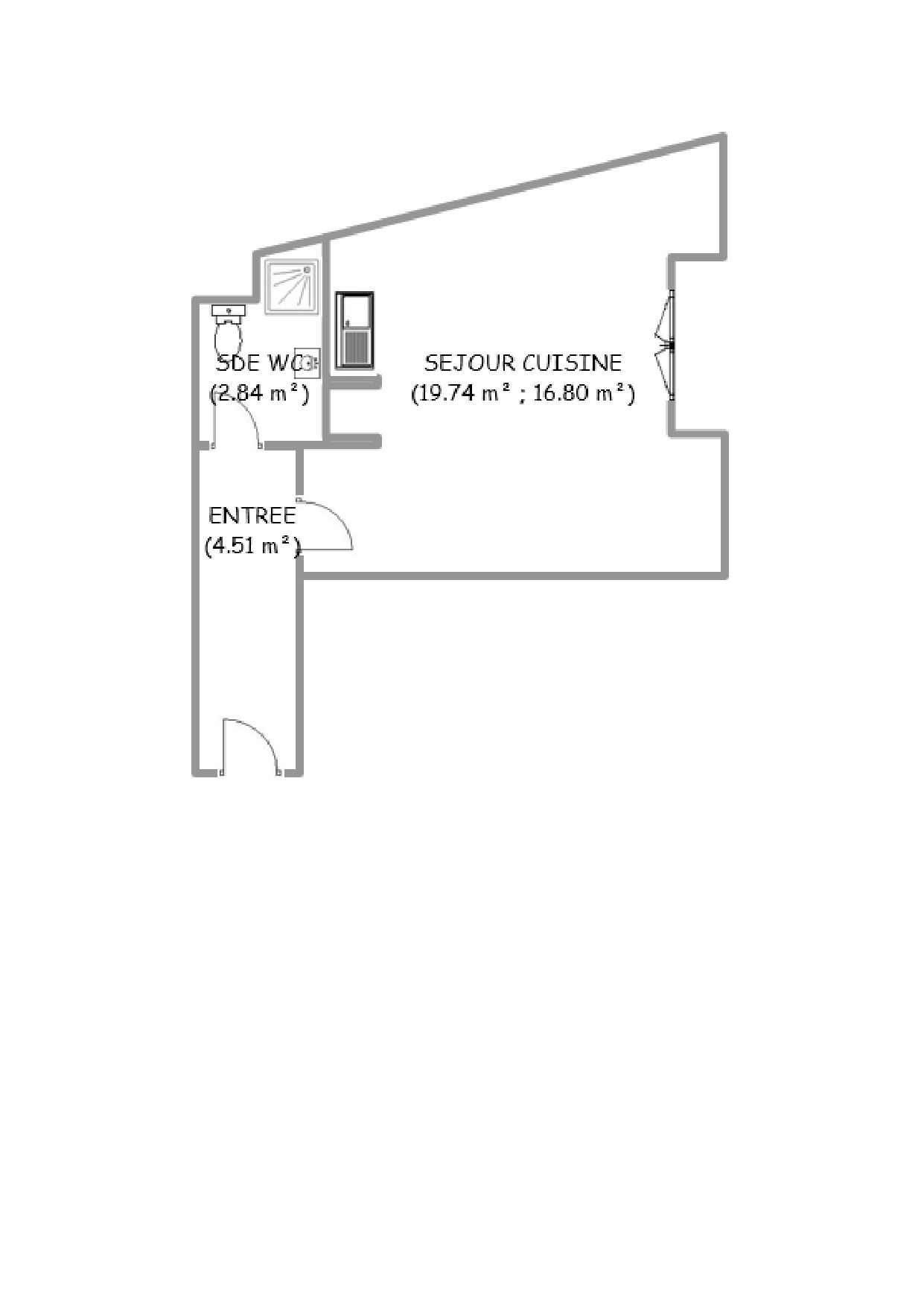
Iad France - Virginie Menguy vous propose : 77300 FONTAINEBLEAU, Investisseurs, ne manquez pas cette occasion rare d’acquérir des appartements F3, F2 ET STUDIOS (certains sont libres, d'autres sont vendus loués) dans cet un immeuble entretenu en plein cOEur de l’emblématique ville de Fontainebleau, à deux pas du prestigieux Château et de son parc. Copropriété en cours de création. Photos : du studio de 24,15 m² / DPE D Les peintures et le sol seront refaits. Idéalement situé dans une rue à sens unique, vous serez à la fois proche du parc historique du château et de la rue principale de Fontainebleau, commerçante et animée tout au long de l’année. Marché express, pharmacie et autres commodités sont accessibles en 2 pas, ce qui garantit un attrait constant pour vos locataires ou pour vous même. Honoraires d'agence à la charge du vendeur. Information d'affichage énergétique sur ce bien : classe ENERGIE E indice 310 et classe CLIMAT B indice 9. Les informations sur les risques auxquels ce bien est exposé, y compris l'obligation légale de débroussaillement, sont disponibles sur le site Géorisques : http://www.georisques.gouv.fr. La présente annonce immobilière a été rédigée sous la responsabilité éditoriale de Mme Virginie Menguy mandataire indépendant en immobilier (sans détention de fonds), agent commercial de la SAS I@D France immatriculé au RSAC de ORLEANS sous le numéro 843658170, titulaire de la carte de démarchage immobilier pour le compte de la société I@D France SAS.
À proximité
Recherche des commodités à proximité...
Détails de l'annonce
Localisation
Ville
Fontainebleau
Pays
FR
Diagnostics / Énergie
Diagnostic DPE
310
Diagnostic GES
9
Surfaces / Pièces / Composition
Nombre d’étages
2
Chauffage et diagnostics
Diagnostic de performance énergétique (DPE)
a
b
c
d
e
f
g
Indice d'émission de gaz à effet de serre (GES)
a
b
c
d
e
f
g
