Type
Bien immobilierTarif
444 000 €Chambres
5Salles de bain
0Vente Maison/villa 6 pièces
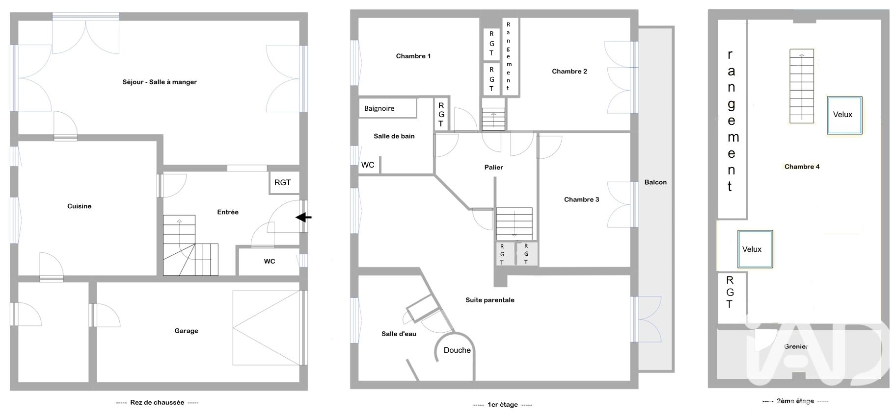
Iad France - Emilie Doucet vous propose : ELANCOURT – Quartier LES COUDRAYS - Maison atypique de 163 m² habitables (194 m² au sol) sur terrain de 335 m² avec garage attenant. Pensée et aménagée par un architecte d’intérieur, offrant volumes généreux, luminosité et prestations de qualité. Idéale pour une famille recomposée ou une grande famille grâce à son agencement optimisé et ses nombreux espaces. Composition de la maison : Rez-de-chaussée : - Entrée spacieuse avec placard (8 m²) - WC avec lave-mains (1,5 m²) - Cuisine familiale (16,85 m²) - Cellier fonctionnel (6,39 m²) - Double séjour / salon traversant (32,16 m²) donnant sur le jardin - Garage attenant Étage : - Chambre 1 Suite parentale avec placard et espace bureau (37,45 m²) - Chambre 2 avec placard (12,5 m²) - Chambre 3 avec placard (11,26 m²) - Chambre 4 avec placard (13,56 m²) - Chambre 5 (comble aménagé) - 2 Salles de bain avec WC et fenêtre, placard intégré (5 m²) Combles aménagés : Un espace lumineux avec deux grandes fenêtres de toit, idéal pour une chambre d’adolescent, une chambre d’amis ou un bureau de télétravail. Grenier / dressing : espace supplémentaire pour rangement ou aménagement personnalisé. Extérieur : - Jardin arboré avec arbres fruitiers et palmier - Terrasse double exposition (Nord / Sud), parfaite pour profiter du soleil toute la journée Commodités : - Écoles maternelle et primaire à moins 600 m - Collège à 1 km - Gare de La Verrière (Lignes N et U) à 3,3 km - À deux pas du Parc des Coudrays (actuellement en rénovation), cadre verdoyant et familial Un véritable coup de cOEur assuré ! Cette maison atypique séduira les amateurs de beaux volumes, de lumière et d’originalité, tout en offrant un cadre idéal dans un environnement calme et recherché. Honoraires d'agence à la charge du vendeur. Information d'affichage énergétique sur ce bien : classe ENERGIE D indice 167 et classe CLIMAT D indice 36. Les informations sur les risques auxquels ce bien est exposé, y compris l'obligation légale de débroussaillement, sont disponibles sur le site Géorisques : http://www.georisques.gouv.fr. La présente annonce immobilière a été rédigée sous la responsabilité éditoriale de Mme Emilie Doucet mandataire indépendant en immobilier (sans détention de fonds), agent commercial de la SAS I@D France immatriculé au RSAC de VERSAILLES sous le numéro 953887064, titulaire de la carte de démarchage immobilier pour le compte de la société I@D France SAS.
À proximité
Recherche des commodités à proximité...
Détails de l'annonce
Localisation
Ville
Élancourt
Pays
FR
Diagnostics / Énergie
Diagnostic DPE
167
Diagnostic GES
36
Surfaces / Pièces / Composition
Nombre d’étages
2
Chauffage et diagnostics
Diagnostic de performance énergétique (DPE)
a
b
c
d
e
f
g
Indice d'émission de gaz à effet de serre (GES)
a
b
c
d
e
f
g
