Type
Bien immobilierTarif
397 800 €Chambres
0Salles de bain
0Vente Murs commerciaux 92 m²
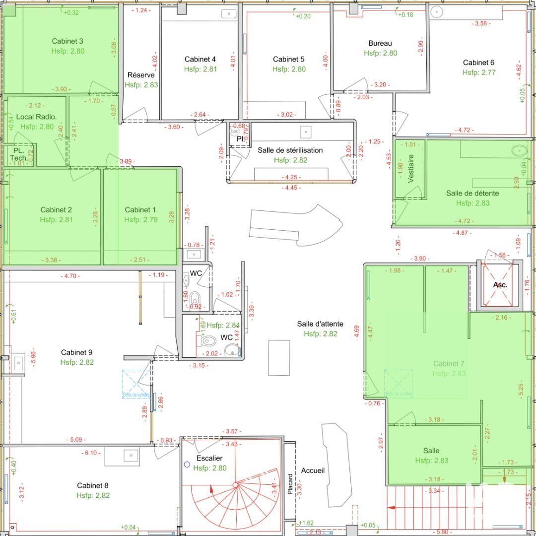
Iad France - Julien Bernardini (06 23 16 40 91) vous propose : Murs commerciaux occupés à vendre – MASSY - IDEAL INVESTISSEMENT STABLE : 9,1% brute. / . - Surface Totale 92 m² environ : 73,51 m² environ + 18,70 m² environ (communs), - Type de bien : Murs commerciaux, 1er étage entièrement dédié 'centre médical', - Loyer annuel : 34 356 €, - Rentabilité brute : 9,1%. / . - Locataire en place : Oui, Médical, - Baux : Professionnels (contrat 1 en tacite depuis 2018, contrat 2 renouvelé en octobre 2024), - Prix de vente : 375 000 €, - Honoraires charge acquéreur : 19 000€, - Charges : 2400 € / an. / . - Points forts : Emplacement stratégique, bonne visibilité, accessibilité, proximité de commerces, transports, écoles, axes routiers - A10-]. / . - Idéal pour un investisseur recherchant une rentabilité stable. Pour plus d'informations ou pour organiser une visite, contactez-moi. / . Photos non contractuelles Information d'affichage énergétique sur le bien associé à cette annonce : classe ENERGIE G indice 693 et classe CLIMAT C indice 19. La présente annonce immobilière a été rédigée sous la responsabilité éditoriale de M. Julien Bernardini (ID 79749), Agent Commercial mandataire en immobilier immatriculé au Registre Spécial des Agents Commerciaux (RSAC) du Tribunal de Commerce de VERSAILLES sous le numéro 499641314 Retrouvez tous nos biens sur notre site internet. www.iadfrance.fr.
Cette semaine
Cette annonce est récente
À proximité
Recherche des commodités à proximité...
Détails de l'annonce
Localisation
Ville
Massy
Pays
FR
Diagnostics / Énergie
Diagnostic DPE
693
Diagnostic GES
19
Surfaces / Pièces / Composition
Nombre d’étages
Chauffage et diagnostics
Diagnostic de performance énergétique (DPE)
a
b
c
d
e
f
g
Indice d'émission de gaz à effet de serre (GES)
a
b
c
d
e
f
g
