Type
Bien immobilierTarif
255 000 €Chambres
3Salles de bain
0Vente Appartement 5 pièces
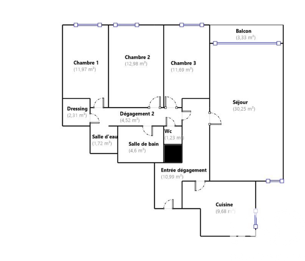
Iad France - Stéphanie Demange vous propose : À Achères – Appartement familial de 4 pièces avec balcon, box et cave Venez découvrir ce bel appartement familial de 102 m², situé au 5ᵉ étage d’une résidence sécurisée avec gardien et espaces verts soignés. Dès l’entrée, vous serez séduit par ses volumes généreux et sa luminosité. L’appartement se compose d’une entrée avec placard, d’une cuisine équipée, et d’un séjour traversant de 30 m² ouvert sur un balcon exposé ouest. L’espace nuit, bien distinct, offre trois grandes chambres de plus de 11 m², un dressing, une salle de bains, une salle d’eau et des toilettes indépendantes. Un box et une cave complètent ce bien. TRAVAUX D'ISOLATION, RAVALEMENT, REMPLACEMENT DE TOUTES LES HUISSERIES PRIS EN CHARGE PAR LES PROPRIÉTAIRES ACTUELS. VOUS BÉNÉFICIEREZ D'UN LOGEMENT AVEC UN MEILLEUR DPE ET UNE BAISSE DU MONTANT DES CHARGES DE COPROPRIÉTÉ. Les charges comprennent : le chauffage, l'eau froide, le gardien et l'entretien de la copropriété (espaces verts, ascenseur. ) Les atouts de ce bien : Une belle luminosité, un agencement fonctionnel, une vue dégagée et un environnement calme à proximité de toutes les commodités. Côté localisation : À 13 min en bus de la gare d’Achères À 7 min à pied du groupe scolaire Louis Jouvet À 10 min à pied du collège Jean Lurçat À 4 min en voiture de la zone commerciale Leclerc - Lidl - Action Un cadre idéal pour s’installer en famille et profiter d’une vie de quartier agréable à Achères. Contactez-moi pour une visite ! La presente annonce immobiliere vise 3 lots situés dans une copropriété de 387 lots au total et ne faisant l'objet d'aucune procédure en cours citée à l'article L. 721-1 du code de la construction et de l'habitation. Montant moyen mensuel de charges déclaré par le vendeur : 385€ par mois (soit 4620 € annuel). Honoraires d'agence à la charge du vendeur. Information d'affichage énergétique sur ce bien : classe ENERGIE E indice 274 et classe CLIMAT D indice 47. Les informations sur les risques auxquels ce bien est exposé, y compris l'obligation légale de débroussaillement, sont disponibles sur le site Géorisques : http://www.georisques.gouv.fr. La présente annonce immobilière a été rédigée sous la responsabilité éditoriale de Mme Stéphanie Demange mandataire indépendant en immobilier (sans détention de fonds), agent commercial de la SAS I@D France immatriculé au RSAC de Versailles sous le numéro 917772204, titulaire de la carte de démarchage immobilier pour le compte de la société I@D France SAS.
À proximité
Recherche des commodités à proximité...
Détails de l'annonce
Localisation
Ville
Achères
Pays
FR
Diagnostics / Énergie
Diagnostic DPE
274
Diagnostic GES
47
Surfaces / Pièces / Composition
Nombre d’étages
7
Étage
5
Chauffage et diagnostics
Diagnostic de performance énergétique (DPE)
a
b
c
d
e
f
g
Indice d'émission de gaz à effet de serre (GES)
a
b
c
d
e
f
g
