Type
Bien immobilierTarif
320 000 €Chambres
3Salles de bain
0Vente Maison/villa 4 pièces
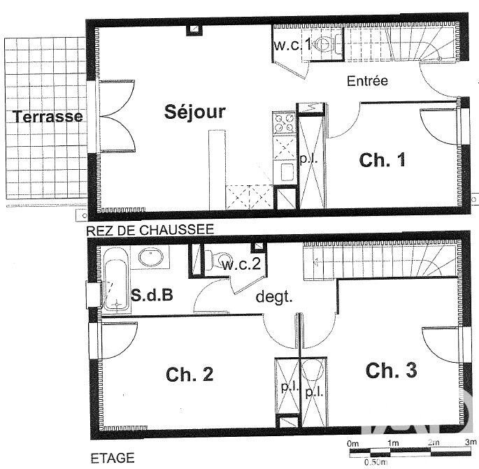
Iad France - Sylvie DUFOUR vous propose : Maison mitoyenne 3 chambres avec GARAGE et JARDIN – Proche des plages et des commodités Située dans un environnement recherché, à proximité des commerces, de la gare et des transports accessibles à pied, et à seulement quelques minutes des plages, découvrez cette maison mitoyenne de 72 m² construite en 2006, en parfait état. Au rez-de-chaussée, elle se compose d’une entrée avec placard, d’une pièce de vie lumineuse avec cuisine ouverte équipée, offrant un accès direct à la terrasse et au jardinet. Une chambre avec placard ainsi qu’un WC indépendant complètent ce niveau. À l’étage, vous trouverez deux chambres spacieuses avec rangements aménagés, une salle d’eau et un second WC séparé. Les plus : - Garage de 14 m² avec mezzanine pour optimiser le rangement - Place de stationnement privative - Piste cyclable au pied de la maison - Commerces, supermarché, école, gare et transports accessibles à pied - Plages à quelques minutes - Raccordée à la fibre Cette maison est idéale pour une résidence principale à l’année, une résidence secondaire proche de l’océan ou un investissement locatif dans un secteur attractif. N'hésitez pas à me contacter pour planifier une visite. La presente annonce immobiliere vise 3 lots situés dans une copropriété de 52 lots au total et ne faisant l'objet d'aucune procédure en cours citée à l'article L. 721-1 du code de la construction et de l'habitation. Montant moyen mensuel de charges déclaré par le vendeur : 111.67€ par mois (soit 1340 € annuel). Honoraires d'agence à la charge du vendeur. Information d'affichage énergétique sur ce bien : classe ENERGIE B indice 108 et classe CLIMAT A indice 4. Les informations sur les risques auxquels ce bien est exposé, y compris l'obligation légale de débroussaillement, sont disponibles sur le site Géorisques : http://www.georisques.gouv.fr. La présente annonce immobilière a été rédigée sous la responsabilité éditoriale de Mme Sylvie DUFOUR mandataire indépendant en immobilier (sans détention de fonds), agent commercial de la SAS I@D France immatriculé au RSAC de Dax sous le numéro 843511403, titulaire de la carte de démarchage immobilier pour le compte de la société I@D France SAS.
Ce mois
Cette annonce est récente
À proximité
Recherche des commodités à proximité...
Détails de l'annonce
Localisation
Ville
Labenne
Pays
FR
Diagnostics / Énergie
Diagnostic DPE
108
Diagnostic GES
4
Chauffage et diagnostics
Diagnostic de performance énergétique (DPE)
a
b
c
d
e
f
g
Indice d'émission de gaz à effet de serre (GES)
a
b
c
d
e
f
g
