Type
Bien immobilierTarif
253 000 €Chambres
4Salles de bain
0Vente Maison de campagne 5 pièces
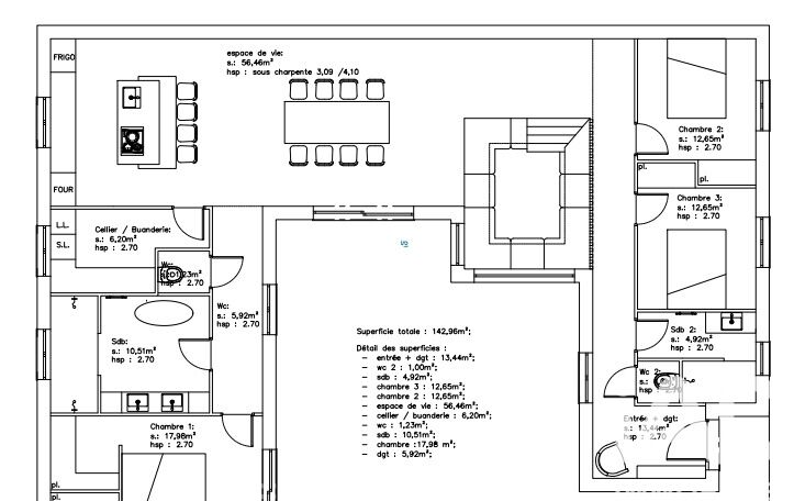
Iad France - Victor Roussel vous propose : Maison de plain pied construite en 2009, située à 15 minutes d’Ussel, offrant un cadre de vie calme et pratique. L’entrée mène à une pièce de vie agréable, prolongée par une cuisine Mobalpa aménagée et équipée et une arrière cuisine fonctionnelle. L’espace nuit réunit trois chambres et une salle d’eau avec WC. Une chambre parentale complète l’ensemble, avec dressing et salle de bain avec WC, offrant confort et intimité. Le tout sur une parcelle clôturée de 3 524 m² avec un abri de jardin. Une maison simple et lumineuse, adaptée à une vie quotidienne sereine, avec un extérieur propice au jeu, au jardinage ou à des activités en plein air. Honoraires d'agence à la charge du vendeur. Information d'affichage énergétique sur ce bien : classe ENERGIE C indice 142 et classe CLIMAT A indice 5. Les informations sur les risques auxquels ce bien est exposé, y compris l'obligation légale de débroussaillement, sont disponibles sur le site Géorisques : http://www.georisques.gouv.fr. La présente annonce immobilière a été rédigée sous la responsabilité éditoriale de M Victor Roussel mandataire indépendant en immobilier (sans détention de fonds), agent commercial de la SAS I@D France immatriculé au RSAC de Brive sous le numéro 942018805, titulaire de la carte de démarchage immobilier pour le compte de la société I@D France SAS.
À proximité
Recherche des commodités à proximité...
Détails de l'annonce
Localisation
Ville
Bellechassagne
Pays
FR
Diagnostics / Énergie
Diagnostic DPE
142
Diagnostic GES
5
Chauffage et diagnostics
Diagnostic de performance énergétique (DPE)
a
b
c
d
e
f
g
Indice d'émission de gaz à effet de serre (GES)
a
b
c
d
e
f
g
