Type
Bien immobilierTarif
246 000 €Chambres
1Salles de bain
0Vente Appartement 2 pièces
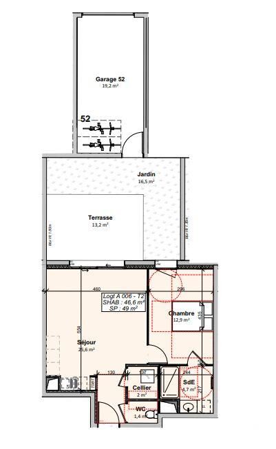
Iad France - Maryse Bonny (07 71 66 73 30) vous propose : Nichée au cOEur du bocage vendéen, Givrand est une commune où il fait bon vivre, alliant tranquillité, patrimoine et nature généreuse. Loin de l’agitation des grandes villes, elle vous invite à la rencontre d’un art de vivre authentique, empreint de convivialité et de traditions rurales. Découvrez son centre pittoresque vivant, ses commerces et services de proximité mais aussi ses paysages diversifiés : les rivières du Jaunay et du Gué Gorand, les marais, et à deux pas, les plages et spots idéals pour admirer le coucher du soleil. Apparentement de plain pied, aux volumes bien répartis, offrant une circulation fluide et des passages spacieux. Le séjour, lumineux et convivial, s'ouvre naturellement sur l'extérieur. Une chambre au volueme confortable, une salle d'eau fonctionnelle, un WC indépendant et un cellier complètent l'ensemble. Les extérieurs - un vrai privilège. Le logement dispose d'un jardin privatif ainsi que d'une terrasse, véritable extension de l'espace de vie, idéales pour profiter des beaux jours. Résidence sécurisée par accès contrôlé, garantissant sérénité et tranquilité au quotidien. Garage privatif avec accès direct par le jardin, stationnement organisé, local annexe. Construction neuve répondant aux normes environnementales actuelles, RE 2020, assurant confort thermique, performance énergétique et qualité durable. Construction de qualité, conception moderne et fonctionnelle. Frais de notaire réduits. Eligible, selon profil, aux dispositifs d'aide de l'Etat. Pourquoi choisir ce bien ? De l'espace, un extérieur privatif, une résidence sécurisée, un logement neuf, confortable et économe, une valeur sûre pour habiter ou investir sereinement. Honoraires d’agence à la charge du vendeur. Bien non soumis au DPE. Les informations sur les risques auxquels ce bien est exposé sont disponibles sur le site Géorisques : www.georisques.gouv.fr. La présente annonce immobilière a été rédigée sous la responsabilité éditoriale de Mlle Maryse Bonny EI (ID 86268), mandataire indépendant en immobilier (sans détention de fonds), agent commercial de la SAS I@D France immatriculé au RSAC de LA ROCHE SUR YON sous le numéro 939986485, titulaire de la carte de démarchage immobilier pour le compte de la société I@D France SAS. Retrouvez tous nos biens sur notre site internet. www.iadfrance.fr.
À proximité
Recherche des commodités à proximité...
Détails de l'annonce
Localisation
Ville
Givrand
Pays
FR
Chauffage et diagnostics
Diagnostic de performance énergétique (DPE)
a
b
c
d
e
f
g
Indice d'émission de gaz à effet de serre (GES)
a
b
c
d
e
f
g
