Trouver...

Language: FR

Devise: EUR

Vente Appartement 2 pièces

Publié le 23 January 2026
Type
Bien immobilier
Tarif
246 000 €
Chambres
1
Salles de bain
0

Vente Appartement 2 pièces

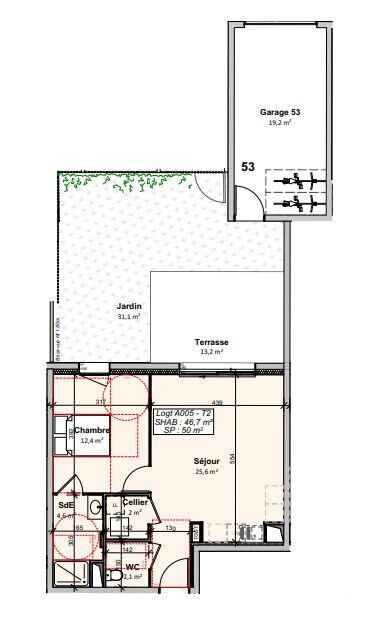
Iad France - Maryse Bonny (07 71 66 73 30) vous propose : Vivre au calme dans un quartier résidentiel de qualité, entre confort, modernité et écrin de verdure. Implanté dans un environnement paisible, ce programme neuf bénéficie d'un emplacement privilégié, a quelques pas des plages, des commodités et du Vélodyssée. Appartement de type T2, de plain-pied, pensé pour le confort du quotidien avec un agencement fluide et fonctionnelle. Il se compose d'un séjour lumineux ouvert sur l'extérieur, d'une chambre, d'une salle d'eau, d'un WC indépendant et d'un cellier. Un vrai plus : les extérieurs. Cet appartement dispose d'un jardin privatif ainsi que d'une terrasse, véritables prolongement de l'espace de vie. Un garage est inclut directement accessible par la parcelle de jardin ! Prestations : Construction neuves répondant aux normes environnementales actuelles, RE 2020 + NF, garantissant confort thermique, performances énergétiques et acoustiques et réduction des consommations. Garage privatif, stationnement double et sécurisé. Les petits plus : Frais de notaire réduits Eligible, selon situation, aux dispositifs de l'Etat Pourquoi ce bien ? De l'espace, du calme, un extérieur privatif, une construction neuve et sécurisée, un investissement serein pour aujourd'hui et demain. Honoraires d’agence à la charge du vendeur. Bien non soumis au DPE. Les informations sur les risques auxquels ce bien est exposé sont disponibles sur le site Géorisques : www.georisques.gouv.fr. La présente annonce immobilière a été rédigée sous la responsabilité éditoriale de Mlle Maryse Bonny EI (ID 86268), mandataire indépendant en immobilier (sans détention de fonds), agent commercial de la SAS I@D France immatriculé au RSAC de LA ROCHE SUR YON sous le numéro 939986485, titulaire de la carte de démarchage immobilier pour le compte de la société I@D France SAS. Retrouvez tous nos biens sur notre site internet. www.iadfrance.fr.

À proximité

Recherche des commodités à proximité...

Détails de l'annonce

Localisation

Ville
Givrand
Pays
FR

Chauffage et diagnostics

Diagnostic de performance énergétique (DPE)
a
b
c
d
e
f
g
Indice d'émission de gaz à effet de serre (GES)
a
b
c
d
e
f
g
Rappelez-moi