Type
Bien immobilierTarif
929 000 €Chambres
5Salles de bain
0Vente Duplex 6 pièces
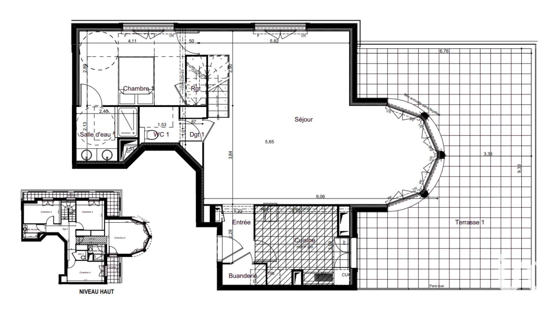
Iad France - Sarah Rozière (06 99 86 19 42) vous propose : Appartement T6 avec grande terrasse à Clamart. Située au cOEur du quartier Grand Canal, rue Serpis, la résidence contemporaine L’Orfèvre conjugue élégance architecturale et qualité de vie. Entre sérénité et dynamisme, cette adresse offre un cadre privilégié à proximité immédiate des commerces, des écoles et du tramway T6 (arrêt Pavé Blanc), reliant Paris en quelques minutes. Disponible 2026. Un appartement raffiné : Situé au 5 ème étage, cet appartement T6 de 151 m² environ habitables se prolonge par une terrasse de 50 m² environ. - Séjour / cuisine 57 m² environ. - Cinq chambres confortables, dont une suite parentale. - Deux salles d’eau et une salle de bains modernes. - Annexes incluses : deux parkings et un cellier. De belles prestations : - Chauffage et eau chaude collectifs avec gestion intelligente des consommations. - Volets roulants électriques, menuiseries aluminium double vitrage. - Porte palière blindée A2P, visiophone et contrôle d’accès Vigik. - Espaces verts paysagers, locaux vélos et stationnements en sous-sol. L’art de vivre à Clamart : - À 9 min à pied du tramway T6 Pavé Blanc et à proximité de la forêt de Meudon. - Commerces, écoles et équipements sportifs accessibles à pied. - À 8 km de Paris – Porte de Versailles et 13 min en tramway du centre commercial Vélizy 2. N’hésitez pas à me contacter pour plus d’informations ou pour un accompagnement sur mesure. Honoraires d’agence à la charge du vendeur. Bien non soumis au DPE. Les informations sur les risques auxquels ce bien est exposé sont disponibles sur le site Géorisques : www.georisques.gouv.fr. La présente annonce immobilière a été rédigée sous la responsabilité éditoriale de Mlle Sarah Rozière EI (ID 83696), mandataire indépendant en immobilier (sans détention de fonds), agent commercial de la SAS I@D France immatriculé au RSAC de Clermont-Ferrand sous le numéro 978616993, titulaire de la carte de démarchage immobilier pour le compte de la société I@D France SAS. Retrouvez tous nos biens sur notre site internet. www.iadfrance.fr.
À proximité
Recherche des commodités à proximité...
Détails de l'annonce
Localisation
Ville
Clamart
Pays
FR
Surfaces / Pièces / Composition
Nombre d’étages
6
Étage
5
Chauffage et diagnostics
Diagnostic de performance énergétique (DPE)
a
b
c
d
e
f
g
Indice d'émission de gaz à effet de serre (GES)
a
b
c
d
e
f
g
