Trouver...

Language: FR

Devise: EUR

Vente Maison/villa 8 pièces

Publié le 13 March 2026
Type
Bien immobilier
Tarif
369 000 €
Chambres
4
Salles de bain
0

Vente Maison/villa 8 pièces

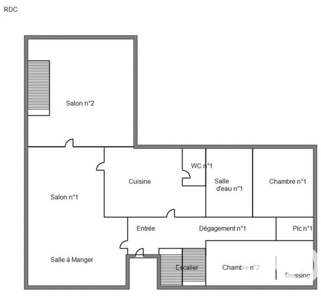
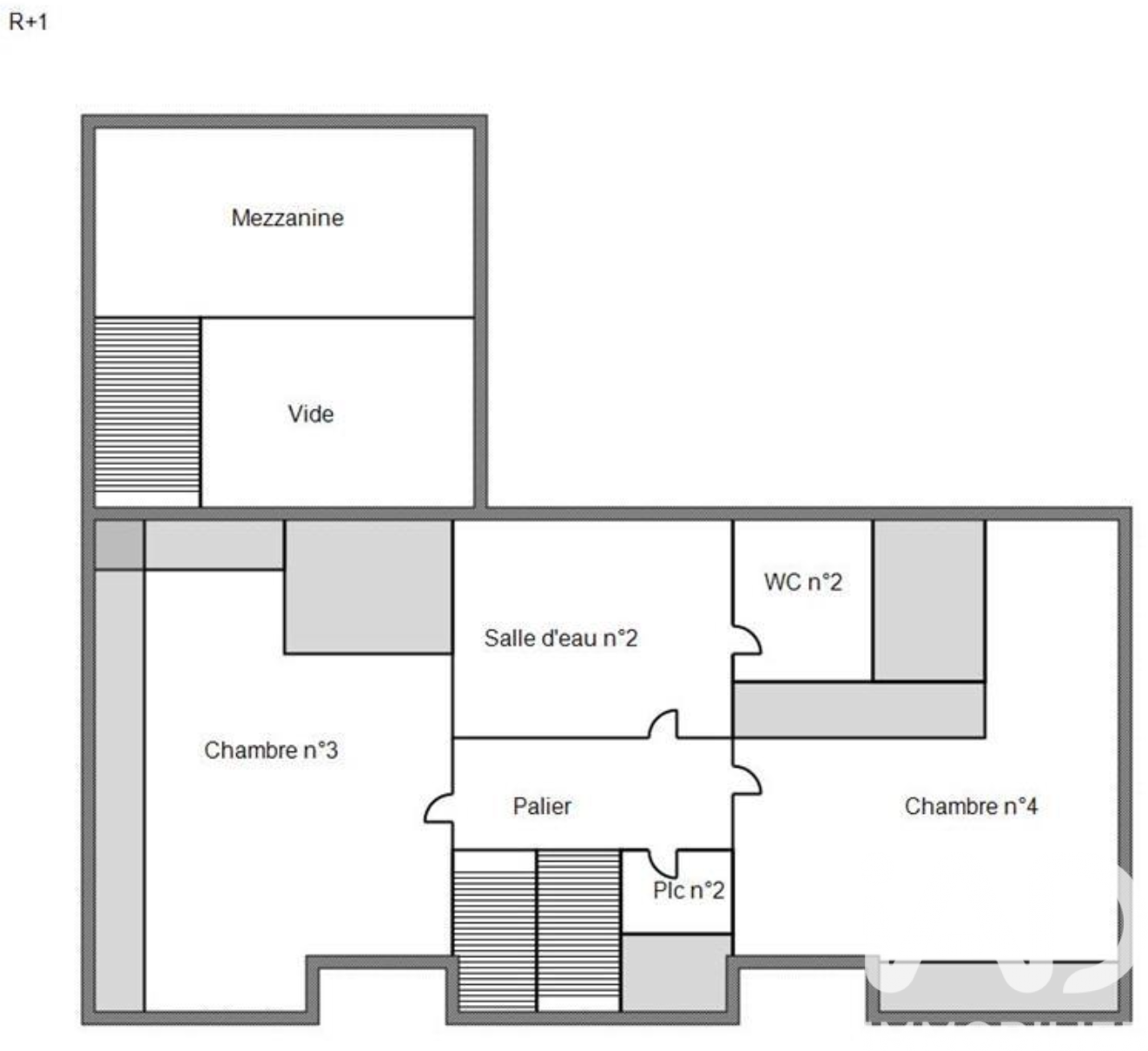
Iad France - Emmanuel Bourgaud vous propose : Située sur la commune de Mauges-sur-Loire, cette maison rénovée offre une surface habitable de 228 m² sur un terrain de 1 875 m². Construite en 1972 et entièrement remise au goût du jour par les propriétaires, elle propose de beaux volumes et une distribution fonctionnelle sur deux niveaux. Au rez-de-chaussée, vous découvrirez deux chambres dont une avec dressing, une salle d’eau, une cuisine, une grande salle à manger lumineuse ainsi qu’un salon et un WC indépendant. À l’étage, deux grandes chambres spacieuses ainsi qu’une salle d’eau avec WC complètent l’étage. Un sous-sol complet avec son garage vient également s’ajouter à l’ensemble, offrant de nombreuses possibilités de rangement ou d’aménagement. Le tout sur une grande parcelle de 1 875 m². Honoraires d'agence à la charge du vendeur. Information d'affichage énergétique sur ce bien : classe ENERGIE C indice 166 et classe CLIMAT B indice 6. Les informations sur les risques auxquels ce bien est exposé, y compris l'obligation légale de débroussaillement, sont disponibles sur le site Géorisques : http://www.georisques.gouv.fr. La présente annonce immobilière a été rédigée sous la responsabilité éditoriale de M Emmanuel Bourgaud mandataire indépendant en immobilier (sans détention de fonds), agent commercial de la SAS I@D France immatriculé au RSAC de ANGERS sous le numéro 943019257, titulaire de la carte de démarchage immobilier pour le compte de la société I@D France SAS.
Cette semaine Cette annonce est récente

À proximité

Recherche des commodités à proximité...

Détails de l'annonce

Localisation

Ville
Mauges-sur-Loire
Pays
FR

Diagnostics / Énergie

Diagnostic DPE
166
Diagnostic GES
6

Surfaces / Pièces / Composition

Nombre d’étages
2

Chauffage et diagnostics

Diagnostic de performance énergétique (DPE)
a
b
c
d
e
f
g
Indice d'émission de gaz à effet de serre (GES)
a
b
c
d
e
f
g
Rappelez-moi