Type
Bien immobilierTarif
85 000 €Chambres
3Salles de bain
0Vente Appartement 5 pièces
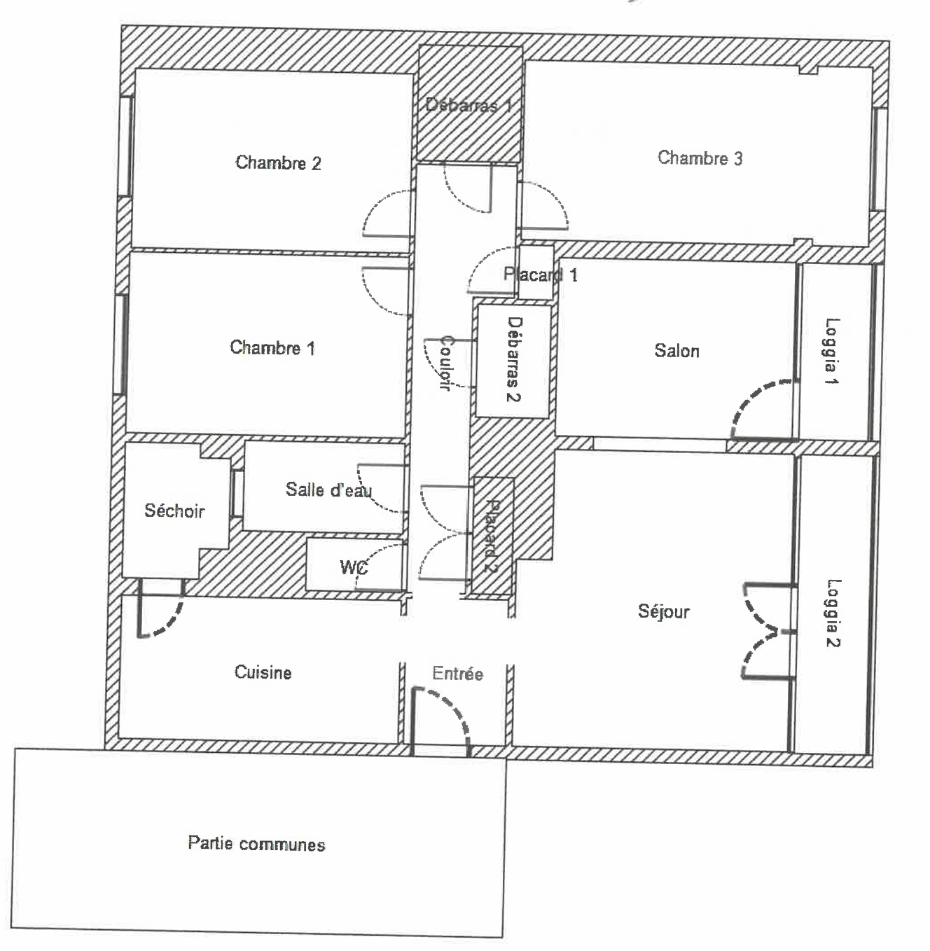
Iad France - Donovan Depoix vous propose : Venez découvrir ce T5 de 105 m² au sol avec VUE DEGAGEE à proximité des transports, écoles et commerces, à deux pas du Parc Jean Perdrix. Lorsque vous entrez votre regard est directement attirée par la baie vitrée du salon donnant sur un balcon avec sa vue imprenable sur l'Ardèche. En prolongement de ce séjour de 18 m², une salle à manger de près de 10 m² pouvant être aisément transformé en chambre. La cuisine séparée est aménagée et donne accès à un cellier de 3 m². Le coin nuit dispose de trois chambres dont une de plus de 14 m², d'uen salle de bain et de WC séparés. Vous disposez également d'un coin douche supplémentaire. Les + de ce bien : nombreux rangements avec deux placards et un dressing, une grande cave de plus de 10 m². Une vue imprenable sur le quartier et les montagnes. Rénovation énergétique en cours. Vous voulez visiter ? Vous avez un projet ? Parlons en ! La presente annonce immobiliere vise 2 lots situés dans une copropriété de 207 lots au total et ne faisant l'objet d'aucune procédure en cours citée à l'article L. 721-1 du code de la construction et de l'habitation. Montant moyen mensuel de charges déclaré par le vendeur : 223.33€ par mois (soit 2680 € annuel). Honoraires d'agence à la charge du vendeur. Information d'affichage énergétique sur ce bien : classe ENERGIE F indice 417 et classe CLIMAT F indice 92. Les informations sur les risques auxquels ce bien est exposé, y compris l'obligation légale de débroussaillement, sont disponibles sur le site Géorisques : http://www.georisques.gouv.fr. La présente annonce immobilière a été rédigée sous la responsabilité éditoriale de M Donovan Depoix mandataire indépendant en immobilier (sans détention de fonds), agent commercial de la SAS I@D France immatriculé au RSAC de ROMANS sous le numéro 933075376, titulaire de la carte de démarchage immobilier pour le compte de la société I@D France SAS.
Ce mois
Cette annonce est récente
À proximité
Recherche des commodités à proximité...
Détails de l'annonce
Localisation
Ville
Valence
Pays
FR
Diagnostics / Énergie
Diagnostic DPE
417
Diagnostic GES
92
Surfaces / Pièces / Composition
Nombre d’étages
3
Étage
3
Chauffage et diagnostics
Diagnostic de performance énergétique (DPE)
a
b
c
d
e
f
g
Indice d'émission de gaz à effet de serre (GES)
a
b
c
d
e
f
g
