Type
Bien immobilierTarif
369 000 €Chambres
4Salles de bain
0Vente Maison/villa 6 pièces
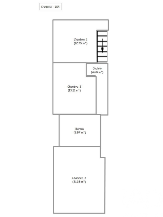
Iad France - Eva Gecele vous propose : À 8 min de Longnes, 5 min de Bréval, au cOEur d’un joli hameau entouré de forêts et de champs, venez découvrir cette magnifique longère ancienne entièrement rénovée ces dernières années, offrant un cadre de vie privilégié entre charme de l’authentique et confort moderne. Au rez-de-chaussée : entrée, cuisine dînatoire, buanderie, salle de bains avec douche et baignoire, WC séparé, séjour double avec accès direct au jardin (baies vitrées) A l'étage : couloir desservant 3 chambres et une suite parentale avec salle d'eau et WC ouverts, coin bureau. La suite parentale peut bénéficier d'un accès indépendant par l'extérieur ou par l'intérieur après quelques aménagements. Magnifique jardin de 2900 m² avec verger (prunes, pommes, pêches, noyer, cognassier. ) Plusieurs ateliers, dépendances. Possibilité de rentrer plusieurs véhicules. Chauffage : électrique à inertie + pompe à chaleur et cheminée insert Fenêtres double vitrage aluminium & volets roulants Cuisine aménagée et équipée Chauffe eau électrique 300l neuf Honoraires d'agence à la charge du vendeur. Information d'affichage énergétique sur ce bien : classe ENERGIE D indice 249 et classe CLIMAT B indice 9. Les informations sur les risques auxquels ce bien est exposé, y compris l'obligation légale de débroussaillement, sont disponibles sur le site Géorisques : http://www.georisques.gouv.fr. La présente annonce immobilière a été rédigée sous la responsabilité éditoriale de Mme Eva Gecele mandataire indépendant en immobilier (sans détention de fonds), agent commercial de la SAS I@D France immatriculé au RSAC de Versailles sous le numéro 902254812, titulaire de la carte de démarchage immobilier pour le compte de la société I@D France SAS.
Ce mois
Cette annonce est récente
À proximité
Recherche des commodités à proximité...
Détails de l'annonce
Localisation
Ville
Longnes
Pays
FR
Diagnostics / Énergie
Diagnostic DPE
249
Diagnostic GES
9
Surfaces / Pièces / Composition
Nombre d’étages
2
Chauffage et diagnostics
Diagnostic de performance énergétique (DPE)
a
b
c
d
e
f
g
Indice d'émission de gaz à effet de serre (GES)
a
b
c
d
e
f
g
