Type
Bien immobilierTarif
255 000 €Chambres
0Salles de bain
0Vente Appartement 1 pièce
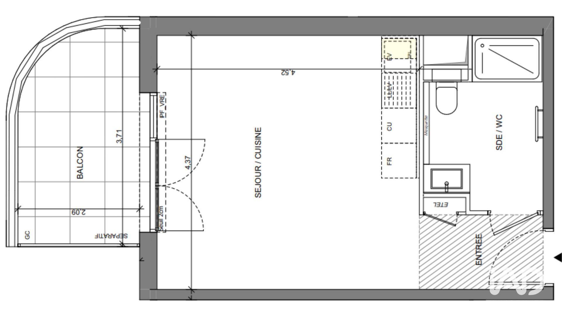
Iad France - Sarah Rozière (06 99 86 19 42) vous propose : Appartement T1 avec balcon à Saint-Laurent-du-Var. Située chemin des Paluds à Saint-Laurent-du-Var, la résidence Valmer propose une architecture contemporaine soignée au sein d’un environnement résidentiel agréable. À proximité des plages et du port de plaisance, cette adresse offre un cadre de vie confortable avec des prestations de qualité. Disponible 2028. Un appartement raffiné : Situé au 4 ème étage, cet appartement T1 de 28 m² environ habitables se prolonge par un balcon de 7 m² environ. - Espace de vie de 22 m² environ. - Salle d’eau moderne équipée avec WC. - Annexe incluse : un parking en sous-sol. De belles prestations : - Chauffage et rafraîchissement par pompe à chaleur. - Volets roulants motorisés et menuiseries aluminium double vitrage. - Piscine commune avec plages solarium au cOEur du jardin paysager. - Résidence sécurisée avec vidéophone, ascenseur et stationnements en sous-sol. L’art de vivre à Saint-Laurent-du-Var : - À quelques minutes à pied des plages et du port de plaisance. - Commerces et services accessibles rapidement. - Accès facile à Nice, à l’aéroport et aux principaux axes routiers. - Quartier résidentiel recherché et agréable au quotidien. N’hésitez pas à me contacter pour plus d’informations ou pour un accompagnement sur mesure. Honoraires d’agence à la charge du vendeur. Bien non soumis au DPE. Les informations sur les risques auxquels ce bien est exposé sont disponibles sur le site Géorisques : www.georisques.gouv.fr. La présente annonce immobilière a été rédigée sous la responsabilité éditoriale de Mlle Sarah Rozière EI (ID 83696), mandataire indépendant en immobilier (sans détention de fonds), agent commercial de la SAS I@D France immatriculé au RSAC de Clermont-Ferrand sous le numéro 978616993, titulaire de la carte de démarchage immobilier pour le compte de la société I@D France SAS. Retrouvez tous nos biens sur notre site internet. www.iadfrance.fr.
À proximité
Recherche des commodités à proximité...
Détails de l'annonce
Localisation
Ville
Saint-Laurent-du-Var
Pays
FR
Surfaces / Pièces / Composition
Nombre d’étages
5
Étage
4
Chauffage et diagnostics
Diagnostic de performance énergétique (DPE)
a
b
c
d
e
f
g
Indice d'émission de gaz à effet de serre (GES)
a
b
c
d
e
f
g
