Trouver...

Language: FR

Devise: EUR

Vente Maison de village 4 pièces

Publié le 10 February 2026
Type
Bien immobilier
Tarif
84 200 €
Chambres
2
Salles de bain
0

Vente Maison de village 4 pièces

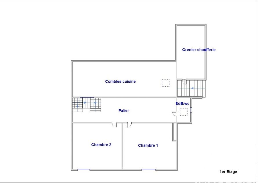
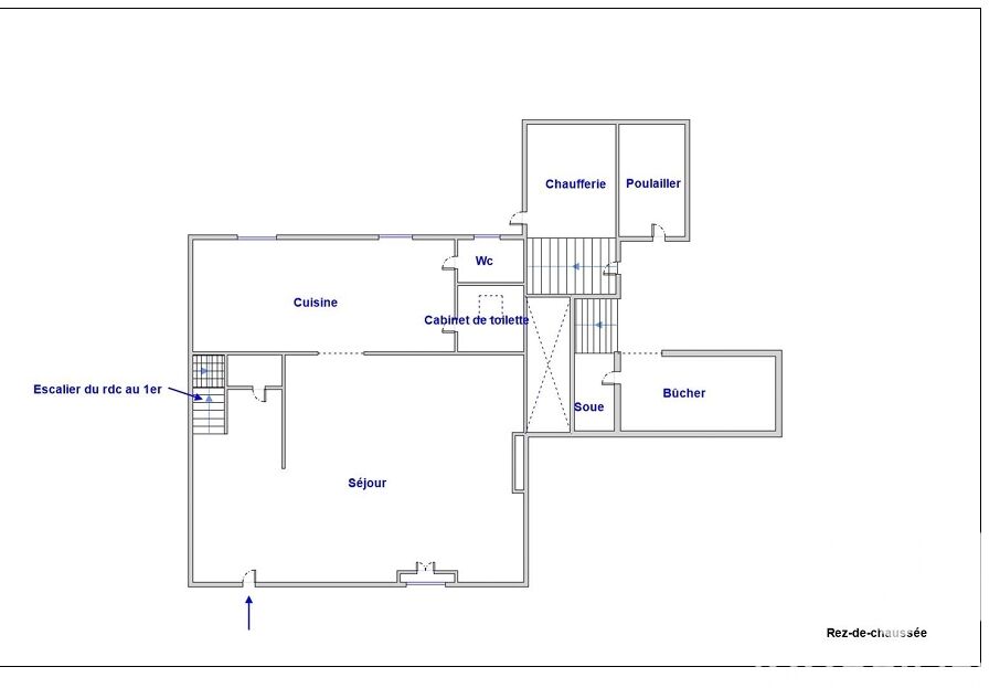
Iad France - Nathalie Gerbouin vous propose : * 53290 * BOUESSAY * 90 m² * PARCELLE 1238 m² * CHARME DE L'ANCIEN * 2 CHAMBRES * A 5 min de Sablé sur Sarthe, charmante maison de 90 m² datant de 1940, offrant un bel espace de vie réparti sur deux niveaux. Au rez-de-chaussée, vous découvrirez un séjour de 35 m², sublimé par de magnifiques poutres apparentes, une cuisine séparée, un wc ainsi qu’un cellier avec point d'eau. À l’étage, un palier dessert deux belles chambres et une salle de bains. Implantée sur un terrain de 1 238 m², la maison dispose d’une terrasse et d’une cour idéales pour vos déjeuners d’été. Un garage et une cave en sous-sol, offrant une solution de stockage pratique et sécurisée. Des travaux de rénovation sont à prévoir, laissant libre cours à vos envies et projets. Beau potentiel, idéal pour une première acquisition ou un investissement. Honoraires d'agence à la charge du vendeur. Information d'affichage énergétique sur ce bien : classe ENERGIE F indice 322 et classe CLIMAT F indice 81. Les informations sur les risques auxquels ce bien est exposé, y compris l'obligation légale de débroussaillement, sont disponibles sur le site Géorisques : http://www.georisques.gouv.fr. La présente annonce immobilière a été rédigée sous la responsabilité éditoriale de Mme Nathalie Gerbouin mandataire indépendant en immobilier (sans détention de fonds), agent commercial de la SAS I@D France immatriculé au RSAC de LAVAL sous le numéro 801712464, titulaire de la carte de démarchage immobilier pour le compte de la société I@D France SAS.

À proximité

Recherche des commodités à proximité...

Détails de l'annonce

Localisation

Ville
Bouessay
Pays
FR

Diagnostics / Énergie

Diagnostic DPE
322
Diagnostic GES
81

Surfaces / Pièces / Composition

Nombre d’étages
2

Chauffage et diagnostics

Diagnostic de performance énergétique (DPE)
a
b
c
d
e
f
g
Indice d'émission de gaz à effet de serre (GES)
a
b
c
d
e
f
g
Rappelez-moi