Type
Bien immobilierTarif
190 000 €Chambres
0Salles de bain
0Vente Appartement 1 pièce
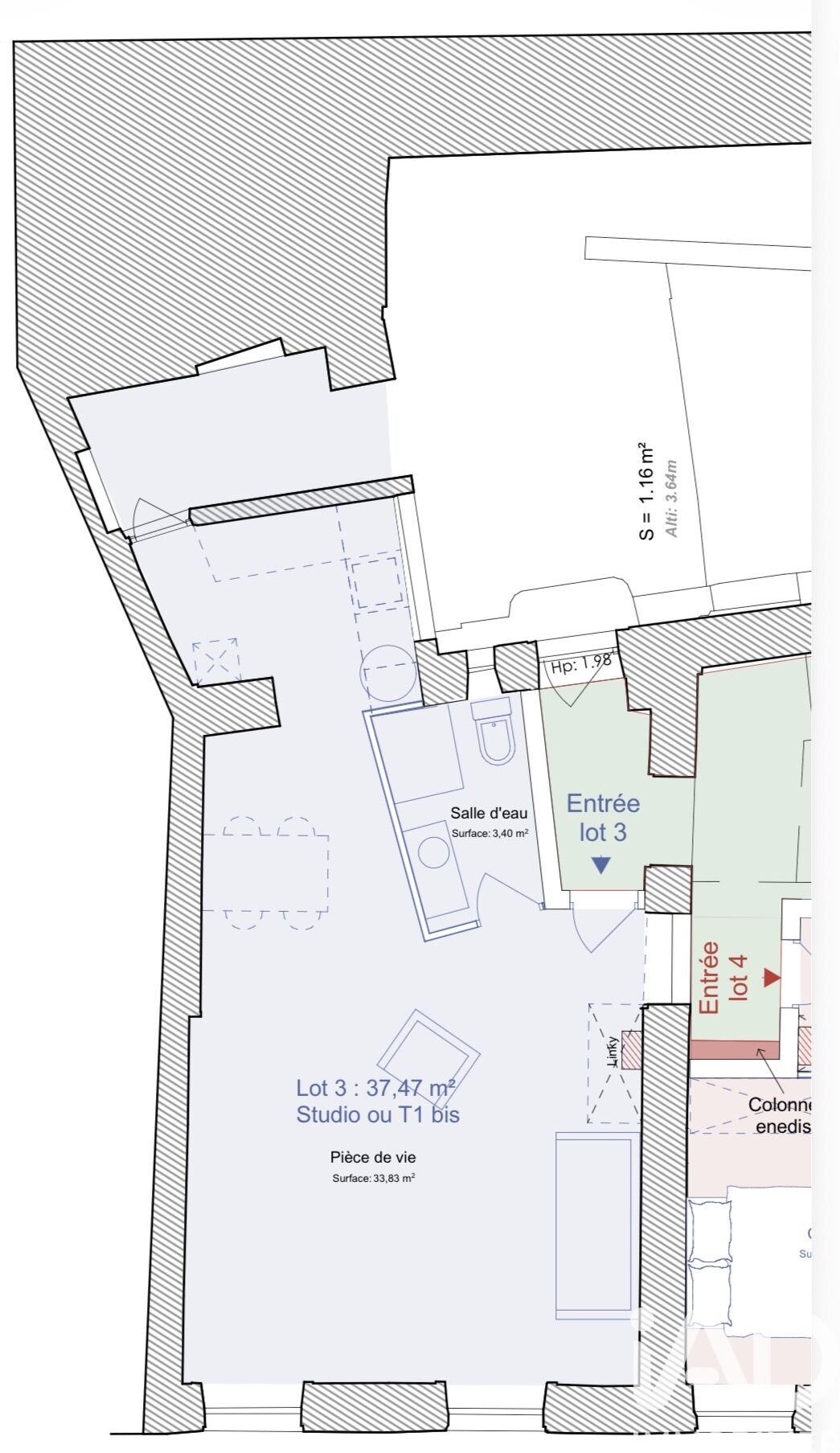
Iad France - Pauline Velozzo vous propose : TRES BELLE OPPORTUNITE A SAISIR - Appartement T1 / T2 entièrement rénové à LIMONEST CENTRE, aux portes de Lyon. Je vous propose de découvrir ce nouveau projet de Rénovations situé en plein coeur de Limonest. L'emplacement est idéal, à moins de 20 minutes de Lyon. Ce village offre un cadre verdoyant et paisible, véritable havre de paix tout en restant proche des commodités, des transports et principaux accès routiers. Au sein d'une maison de village pleine de charme, vous découvrirez 6 appartements en cours de rénovation dont un appartement 1 pièce de plus de 37 m² au Premier étage (RDC sur Cour Intérieure). T2 possible. Idéal investisseurs. Il est composé d'une pièce de vie spacieuse et lumineuse de 33 m², d'une salle d'eau avec WC. Agencement fonctionnel avec confort optimal. Vue dégagée. L'appartement sera livré entièrement rénové avec cuisine aménagée. Prestations soignées et de qualité. La résidence entièrement close et sécurisée compte seulement 6 logements au total, ce qui en fait une copropriété à taille humaine. Local vélo. Offrant un savant mélange entre le charme authentique de l'ancien et le confort contemporain, cet appartement saura sans nul doute vous séduire. Contactez moi dès maintenant pour découvrir et visiter ce beau projet ! Photos non contractuelles Honoraires d'agence à la charge du vendeur. Bien non soumis au DPE. Les informations sur les risques auxquels ce bien est exposé, y compris l'obligation légale de débroussaillement, sont disponibles sur le site Géorisques : http://www.georisques.gouv.fr. La présente annonce immobilière a été rédigée sous la responsabilité éditoriale de Mme Pauline Velozzo mandataire indépendant en immobilier (sans détention de fonds), agent commercial de la SAS I@D France immatriculé au RSAC de LYON sous le numéro 938283462, titulaire de la carte de démarchage immobilier pour le compte de la société I@D France SAS.
À proximité
Recherche des commodités à proximité...
Détails de l'annonce
Localisation
Ville
Limonest
Pays
FR
Surfaces / Pièces / Composition
Nombre d’étages
2
Chauffage et diagnostics
Diagnostic de performance énergétique (DPE)
a
b
c
d
e
f
g
Indice d'émission de gaz à effet de serre (GES)
a
b
c
d
e
f
g
