Trouver...

Language: FR

Devise: EUR

Vente Appartement 4 pièces

Publié le 6 February 2026
Type
Bien immobilier
Tarif
298 000 €
Chambres
3
Salles de bain
0

Vente Appartement 4 pièces

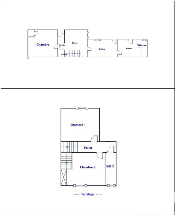
Iad France - Julien Sonet vous propose : Rue du Général Buat à Nantes, cet appartement entièrement rénové offre une surface totale de 83 m². Le bien se développe sur deux niveaux et se compose d’une pièce de vie lumineuse, d’une cuisine aménagée non équipée, de plusieurs espaces aménagés en pièces de nuit, dont une grande pièce en rez-de-chaussée, ainsi que de deux salles d’eau et deux WC, assurant une organisation fonctionnelle. Le chauffage est individuel au gaz naturel. Une place de stationnement privative et une cave complètent le bien. L’emplacement permet un accès rapide aux commerces, établissements scolaires et transports, offrant un cadre de vie pratique au quotidien. La presente annonce immobiliere vise 1 lot situé dans une copropriété de 52 lots au total et ne faisant l'objet d'aucune procédure en cours citée à l'article L. 721-1 du code de la construction et de l'habitation. Montant moyen mensuel de charges déclaré par le vendeur : 62.33€ par mois (soit 748 € annuel). Honoraires d'agence à la charge du vendeur. Information d'affichage énergétique sur ce bien : classe ENERGIE D indice 213 et classe CLIMAT D indice 46. Les informations sur les risques auxquels ce bien est exposé, y compris l'obligation légale de débroussaillement, sont disponibles sur le site Géorisques : http://www.georisques.gouv.fr. La présente annonce immobilière a été rédigée sous la responsabilité éditoriale de M Julien Sonet mandataire indépendant en immobilier (sans détention de fonds), agent commercial de la SAS I@D France immatriculé au RSAC de NANTES sous le numéro 900046673, titulaire de la carte de démarchage immobilier pour le compte de la société I@D France SAS.

À proximité

Recherche des commodités à proximité...

Détails de l'annonce

Localisation

Ville
Nantes
Pays
FR

Diagnostics / Énergie

Diagnostic DPE
213
Diagnostic GES
46

Surfaces / Pièces / Composition

Nombre d’étages
3

Chauffage et diagnostics

Diagnostic de performance énergétique (DPE)
a
b
c
d
e
f
g
Indice d'émission de gaz à effet de serre (GES)
a
b
c
d
e
f
g
Rappelez-moi