Type
Bien immobilierTarif
160 000 €Chambres
2Salles de bain
0Vente Maison/villa 3 pièces
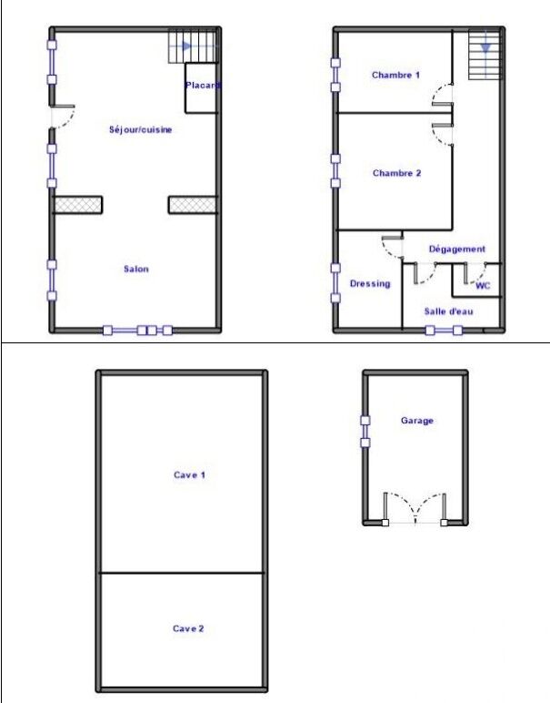
Iad France - Valérie Vallet vous propose : Maison T3 rénovée de 73 m² habitables avec jardin et garage. La maison se compose au rez-de-chaussée, d'une pièce de vie lumineuse avec cuisine ouverte équipée donnant sur un petit jardin avec terrasse. À l'étage, de 2 chambres avec rangements, d'une salle de bain et wc indépendants. Un garage et une place de parking complètent ce bien. Aucun travaux à prévoir. Idéalement située sur la commune de Mercuès, à proximité de Cahors, dans la résidence “Clos des 3 empereurs romains” copropriété calme et très bien entretenue, cette petite maison cosy vous séduira par sa fonctionnalité et son confort moderne. Commerces et services à proximité immédiate. Chauffage électrique, assainissement collectif, double vitrage, volets roulants. Impot foncier 2025 : 1100€ La presente annonce immobiliere vise 2 lots situés dans une copropriété de 150 lots au total et ne faisant l'objet d'aucune procédure en cours citée à l'article L. 721-1 du code de la construction et de l'habitation. Montant moyen mensuel de charges déclaré par le vendeur : 41.67€ par mois (soit 500 € annuel). Honoraires d'agence à la charge du vendeur. Information d'affichage énergétique sur ce bien : classe ENERGIE C indice 177 et classe CLIMAT B indice 6. Les informations sur les risques auxquels ce bien est exposé, y compris l'obligation légale de débroussaillement, sont disponibles sur le site Géorisques : http://www.georisques.gouv.fr. La présente annonce immobilière a été rédigée sous la responsabilité éditoriale de Mme Valérie Vallet mandataire indépendant en immobilier (sans détention de fonds), agent commercial de la SAS I@D France immatriculé au RSAC de Cahors sous le numéro 495041501, titulaire de la carte de démarchage immobilier pour le compte de la société I@D France SAS.
Ce mois
Cette annonce est récente
À proximité
Recherche des commodités à proximité...
Détails de l'annonce
Localisation
Ville
Mercuès
Pays
FR
Diagnostics / Énergie
Diagnostic DPE
177
Diagnostic GES
6
Surfaces / Pièces / Composition
Nombre d’étages
2
Chauffage et diagnostics
Diagnostic de performance énergétique (DPE)
a
b
c
d
e
f
g
Indice d'émission de gaz à effet de serre (GES)
a
b
c
d
e
f
g
