Type
Bien immobilierTarif
573 000 €Chambres
0Salles de bain
0Vente Immeuble 264 m²
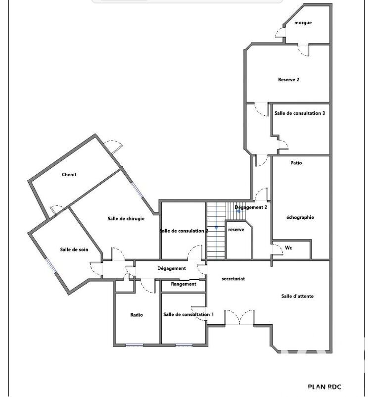
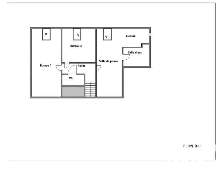
Iad France - Julien Brunel vous propose : SPECIAL INVESTISSEUR ! MURS COMMERCIAUX LOUÉS – CLINIQUE VÉTÉRINAIRE – INVESTISSEMENT LOCATIF À vendre, murs commerciaux occupés par un cabinet vétérinaire, dans le cadre d’un investissement locatif sécurisé avec locataire en place. Le bien est exploité par un cabinet appartenant au groupe vétérinaire IVC Evidensia, leader en Europe, présent dans de nombreux pays et regroupant plusieurs milliers de cliniques et hôpitaux vétérinaires. Le locataire bénéficie d’un bail commercial en cours jusqu’en 2031, offrant une belle visibilité locative. Données locatives : Loyer annuel : 41 750 € Bail commercial en cours jusqu’en 2031 Taxe foncière à la charge du locataire Assurance à la charge du locataire Entretien courant pris en charge par le locataire La structure du bail limite les charges pour le propriétaire et simplifie la gestion locative. État du bien : Les travaux structurels importants, notamment la toiture, ont été réalisés récemment, limitant les investissements à prévoir à moyen terme. Investissement : Rentabilité brute : environ 7,3 % Locataire appartenant à un groupe vétérinaire européen reconnu Revenus locatifs immédiats Gestion simplifiée grâce à la répartition des charges Contactez-nous dès aujourd'hui pour organiser une visite et explorer toutes les possibilités offertes par cet investissement locatif à Thorigny-sur-Marne. Honoraires d'agence à la charge du vendeur. Information d'affichage énergétique sur ce bien : classe ENERGIE D indice 231 et classe CLIMAT B indice 7. Les informations sur les risques auxquels ce bien est exposé, y compris l'obligation légale de débroussaillement, sont disponibles sur le site Géorisques : http://www.georisques.gouv.fr. La présente annonce immobilière a été rédigée sous la responsabilité éditoriale de M Julien Brunel mandataire indépendant en immobilier (sans détention de fonds), agent commercial de la SAS I@D France immatriculé au RSAC de MEAUX sous le numéro 500300777, titulaire de la carte de démarchage immobilier pour le compte de la société I@D France SAS.
Cette semaine
Cette annonce est récente
À proximité
Recherche des commodités à proximité...
Détails de l'annonce
Localisation
Ville
Thorigny-sur-Marne
Pays
FR
Diagnostics / Énergie
Diagnostic DPE
231
Diagnostic GES
7
Chauffage et diagnostics
Diagnostic de performance énergétique (DPE)
a
b
c
d
e
f
g
Indice d'émission de gaz à effet de serre (GES)
a
b
c
d
e
f
g
