Type
Bien immobilierTarif
119 000 €Chambres
2Salles de bain
0Vente Appartement 3 pièces
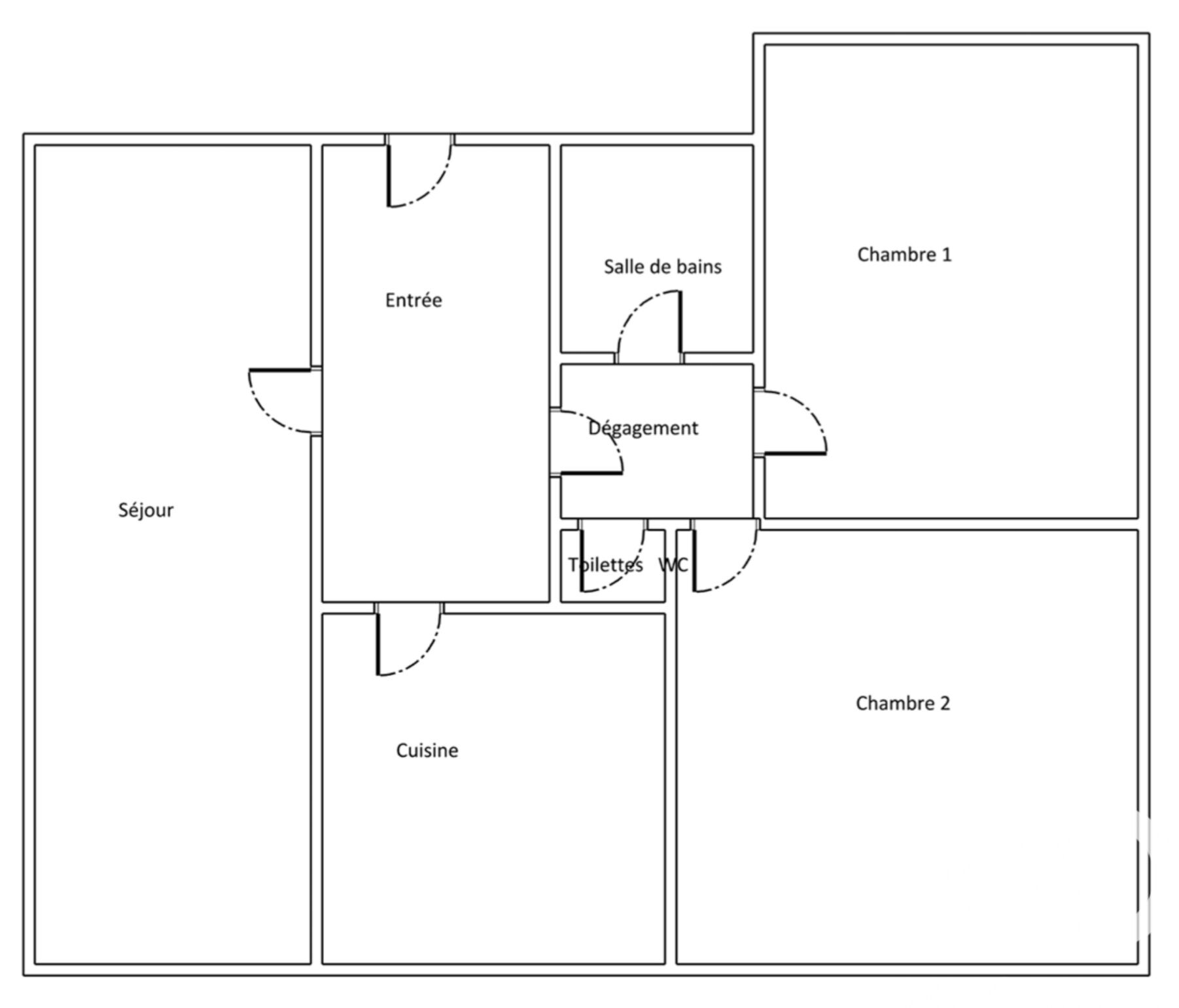
Iad France - Maxime Berger vous propose : Opportunité rare — Appartement T3 avec cave et garage. Idéalement situé dans le quartier très prisé du Domaine du Chapitre, reconnu pour son environnement résidentiel, calme et verdoyant, cet appartement offre un cadre de vie agréable, alliant tranquillité et proximité des commodités. Au 2ᵉ et dernier étage d’une petite résidence bien entretenue, de 5 appartements, il se compose d’un séjour lumineux, d’une grande cuisine aménagée, de deux chambres, d’une salle de bains et d'un WC séparé. Son agencement fonctionnel et sa luminosité naturelle contribuent à une atmosphère confortable et conviviale. Le chauffage collectif, inclus dans les charges de copropriété, assure un confort optimal au quotidien. Côté stationnement, vous bénéficiez d’un grand garage individuel. L’environnement se distingue par sa qualité de vie : cadre paisible, proximité immédiate des commerces, des écoles et des transports, avec un accès rapide à Rouen et aux principaux axes routiers. Un bien adapté aussi bien à une résidence principale qu’à un investissement locatif, offrant une belle valorisation patrimoniale. À visiter sans tarder. Renseignements 7 jours sur 7. La presente annonce immobiliere vise 3 lots situés dans une copropriété de 15 lots au total et ne faisant l'objet d'aucune procédure en cours citée à l'article L. 721-1 du code de la construction et de l'habitation. Montant moyen mensuel de charges déclaré par le vendeur : 213.33€ par mois (soit 2560 € annuel). Honoraires d'agence à la charge du vendeur. Information d'affichage énergétique sur ce bien : classe ENERGIE D indice 226 et classe CLIMAT D indice 49. Les informations sur les risques auxquels ce bien est exposé, y compris l'obligation légale de débroussaillement, sont disponibles sur le site Géorisques : http://www.georisques.gouv.fr. La présente annonce immobilière a été rédigée sous la responsabilité éditoriale de M Maxime Berger mandataire indépendant en immobilier (sans détention de fonds), agent commercial de la SAS I@D France immatriculé au RSAC de ROUEN sous le numéro 828311498, titulaire de la carte de démarchage immobilier pour le compte de la société I@D France SAS.
Ce mois
Cette annonce est récente
À proximité
Recherche des commodités à proximité...
Détails de l'annonce
Localisation
Ville
Bihorel
Pays
FR
Diagnostics / Énergie
Diagnostic DPE
226
Diagnostic GES
49
Surfaces / Pièces / Composition
Nombre d’étages
2
Étage
2
Chauffage et diagnostics
Diagnostic de performance énergétique (DPE)
a
b
c
d
e
f
g
Indice d'émission de gaz à effet de serre (GES)
a
b
c
d
e
f
g
