Type
Bien immobilierTarif
99 000 €Chambres
2Salles de bain
0Vente Maison de village 4 pièces
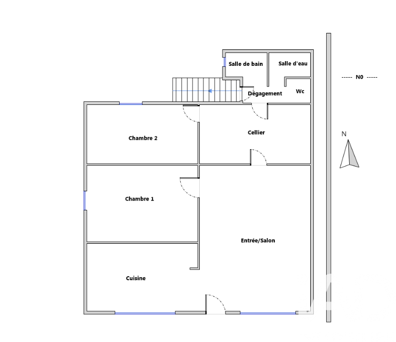
Iad France - Fabien Hugues vous propose : Situé au cOEur du village de Molières-sur-Cèze, rue de la République, ce bien de plain-pied développe une surface d’environ 102 m² et offre une double destination possible : habitation ou activité professionnelle libérale. Ancien local commercial, il a bénéficié d’une rénovation technique approfondie : toiture et charpente refaites en 2016, électricité et plomberie entièrement reprises, isolation des murs et des combles, menuiseries en double vitrage. Le chauffage est assuré par une chaudière fioul complétée par un poêle à bois, l’eau chaude par cumulus. L’espace principal se compose d’un séjour de 49 m² avec cuisine semi-ouverte à aménager, offrant une hauteur sous plafond de 3,78 m, permettant une grande liberté d’aménagement, aussi bien pour un espace de vie que pour une salle d’attente, de consultation ou un bureau.
Deux chambres d’environ 16 m², une salle de bain rénovée, un WC indépendant et un grand dégagement central avec carreaux de ciment d’époque complètent l’ensemble. Cette pièce intermédiaire, sans ouverture directe, se prête naturellement à un bureau, salon secondaire ou espace professionnel. Rénovation en cours qui sera finalisée pour le vente. À l’arrière, une cour de 15 m² environ, accessible par escalier, donne accès à des caves sur toute la surface du bâti, Le bien ne dispose pas de stationnement privatif, un parking communal est situé à proximité immédiate.
La façade conserve un rideau métallique pouvant être supprimé, élément cohérent pour une activité libérale et sécurisant, tout en restant compatible avec un usage d’habitation. Honoraires d'agence à la charge du vendeur. Information d'affichage énergétique sur ce bien : classe ENERGIE E indice 314 et classe CLIMAT E indice 64. Les informations sur les risques auxquels ce bien est exposé, y compris l'obligation légale de débroussaillement, sont disponibles sur le site Géorisques : http://www.georisques.gouv.fr. La présente annonce immobilière a été rédigée sous la responsabilité éditoriale de M Fabien Hugues mandataire indépendant en immobilier (sans détention de fonds), agent commercial de la SAS I@D France immatriculé au RSAC de NIMES sous le numéro 902266097, titulaire de la carte de démarchage immobilier pour le compte de la société I@D France SAS.
Ce mois
Cette annonce est récente
À proximité
Recherche des commodités à proximité...
Détails de l'annonce
Localisation
Ville
Molières-sur-Cèze
Pays
FR
Diagnostics / Énergie
Diagnostic DPE
314
Diagnostic GES
64
Chauffage et diagnostics
Diagnostic de performance énergétique (DPE)
a
b
c
d
e
f
g
Indice d'émission de gaz à effet de serre (GES)
a
b
c
d
e
f
g
