Type
Bien immobilierTarif
630 000 €Chambres
2Salles de bain
0Vente Appartement 3 pièces
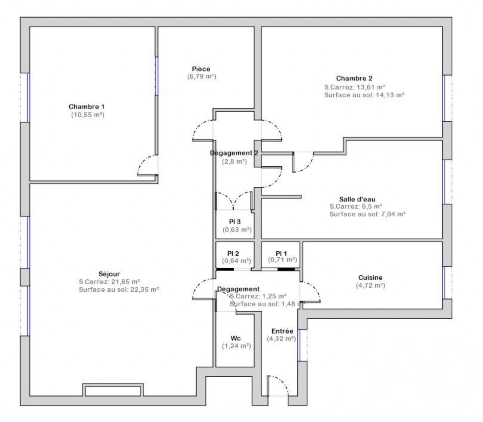
Iad France - Maud Carrasco vous propose : EXCLUSIVITÉ – Appartement 3 / 4 pièces – Découvrez cet appartement lumineux, idéalement situé au cOEur de Montrouge, dans un quartier vivant et recherché, à proximité immédiate des commerces, du métro, des écoles, des crèches, des restaurants, ainsi que de plusieurs parcs et aires de jeux. L’appartement se compose d’un espace de vie lumineux comprenant un grand séjour orienté sud, deux chambres, d’une cuisine équipée, une salle de bain avec douche et baignoire, ainsi qu’un WC séparé. De nombreux rangements viennent compléter l’ensemble. Ainsi qu’une cave en sous sol tres pratique. Il bénéficie également d’une pièce supplémentaire pouvant être aménagée selon vos besoins : espace bureau, chambre d’ami, dressing ou agrandissement d’une chambre existante. Un bien fonctionnel et modulable, offrant de nombreuses possibilités. La copropriété prévoit un futur réaménagement de la cour pour créer un espace commun dédié au stationnement des vélos et des poussettes. Ne manquez pas l'opportunité d'acquérir ce bel appartement à Montrouge, un véritable cocon familial au cOEur de la ville. Contactez-nous dès aujourd'hui pour organiser votre visite. La presente annonce immobiliere vise 2 lots situés dans une copropriété de 14 lots au total et ne faisant l'objet d'aucune procédure en cours citée à l'article L. 721-1 du code de la construction et de l'habitation. Montant moyen mensuel de charges déclaré par le vendeur : 177.14€ par mois (soit 2125.64 € annuel). Honoraires d'agence à la charge du vendeur. Information d'affichage énergétique sur ce bien : classe ENERGIE D indice 224 et classe CLIMAT D indice 48. Les informations sur les risques auxquels ce bien est exposé, y compris l'obligation légale de débroussaillement, sont disponibles sur le site Géorisques : http://www.georisques.gouv.fr. La présente annonce immobilière a été rédigée sous la responsabilité éditoriale de Mme Maud Carrasco mandataire indépendant en immobilier (sans détention de fonds), agent commercial de la SAS I@D France immatriculé au RSAC de NANTERRE sous le numéro 993047679, titulaire de la carte de démarchage immobilier pour le compte de la société I@D France SAS.
À proximité
Recherche des commodités à proximité...
Détails de l'annonce
Localisation
Ville
Montrouge
Pays
FR
Diagnostics / Énergie
Diagnostic DPE
224
Diagnostic GES
48
Surfaces / Pièces / Composition
Nombre d’étages
3
Chauffage et diagnostics
Diagnostic de performance énergétique (DPE)
a
b
c
d
e
f
g
Indice d'émission de gaz à effet de serre (GES)
a
b
c
d
e
f
g
