Trouver...

Language: FR

Devise: EUR

Vente Maison de ville 5 pièces

Publié le 24 August 2025
Type
Bien immobilier
Tarif
185 000 €
Chambres
4
Salles de bain
0

Vente Maison de ville 5 pièces

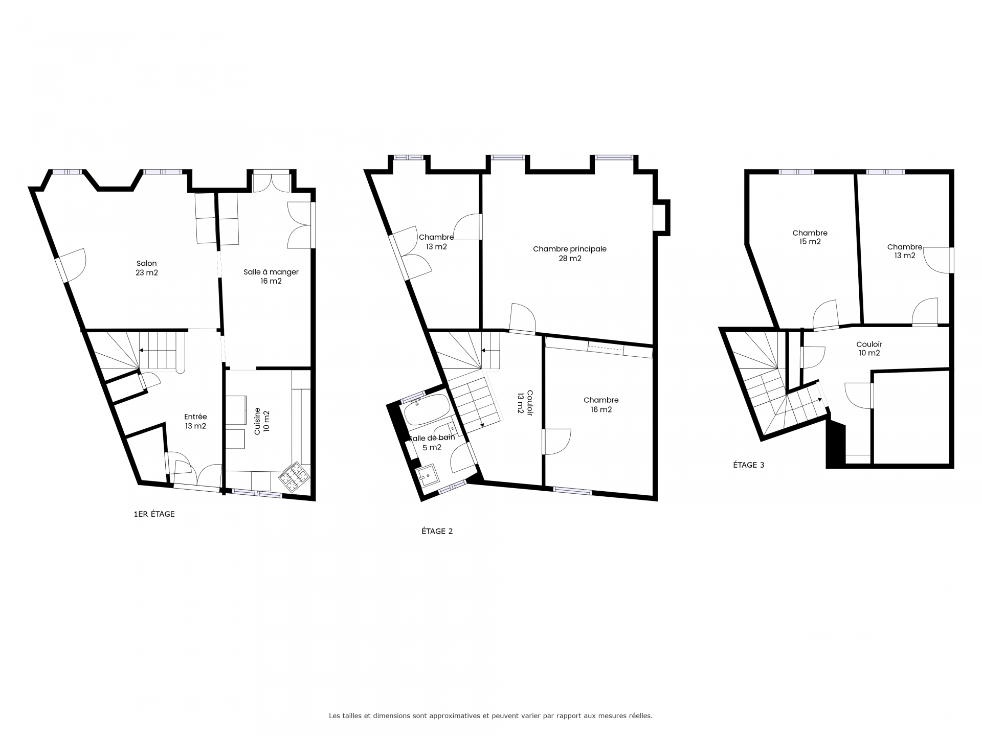
Iad France - Veronique Noureddine vous propose : Maison coup de cOEur du XVIIIe siècle pour les amoureux des vieilles pierres ! Une vaste entrée mène à un salon lumineux, une salle à manger conviviale et une cuisine indépendante. WC. À l’étage, 3 chambres dont une très vaste et une salle de bain avec WC. Le dernier niveau offre deux grandes pièces à aménager et un espace de rangement. Grande cave, terrasse agréable. Toiture neuve, chaudière neuve, électricité refaite. Commerces, écoles de la maternelle au collège et transports à pied. Pas de jardin ni garage. Remplacement des fenêtres à prévoir. Honoraires d'agence à la charge du vendeur. Information d'affichage énergétique sur ce bien : classe ENERGIE D indice 188 et classe CLIMAT D indice 41. Les informations sur les risques auxquels ce bien est exposé, y compris l'obligation légale de débroussaillement, sont disponibles sur le site Géorisques : http://www.georisques.gouv.fr. La présente annonce immobilière a été rédigée sous la responsabilité éditoriale de Mme Veronique Noureddine mandataire indépendant en immobilier (sans détention de fonds), agent commercial de la SAS I@D France immatriculé au RSAC de Saverne sous le numéro 883899007, titulaire de la carte de démarchage immobilier pour le compte de la société I@D France SAS.

À proximité

Recherche des commodités à proximité...

Détails de l'annonce

Localisation

Ville
Marmoutier
Pays
FR

Diagnostics / Énergie

Diagnostic DPE
188
Diagnostic GES
41

Surfaces / Pièces / Composition

Nombre d’étages
3

Chauffage et diagnostics

Diagnostic de performance énergétique (DPE)
a
b
c
d
e
f
g
Indice d'émission de gaz à effet de serre (GES)
a
b
c
d
e
f
g
Rappelez-moi