Type
Bien immobilierTarif
153 000 €Chambres
0Salles de bain
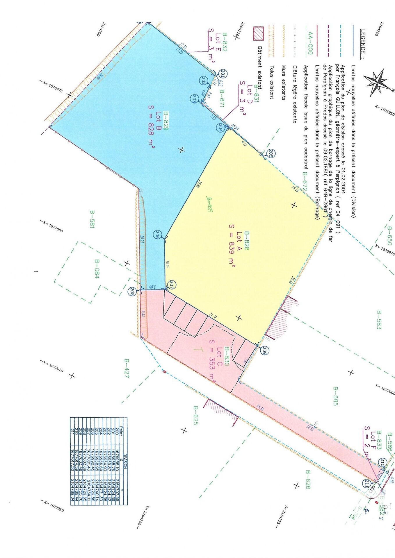
0Vente Terrain 828 m²
Iad France - Michel-Ange Alarcon vous propose : Exclusivité : Sur la commune de SAINT FELIU D'AMONT. Terrain constructible 4 faces d ' environ 830 m², viabilisé et près à bâtir situé dans une impasse. Tous les réseaux (électricité, eau potable, eaux usées) sont en limite de propriété. Terrain plat, libre de constructeur, avec possibilité de vous proposer un projet clé en main. Un permis de construire a été déposer et accepter mais peux être modifié. Plain-pied possible, toit plat autorisé aussi. Proche des commerces et des commodités. Situé seulement à 14 mn de PERPIGNAN et 15mn de Thuir Honoraires d'agence à la charge du vendeur. Bien non soumis au DPE. Les informations sur les risques auxquels ce bien est exposé, y compris l'obligation légale de débroussaillement, sont disponibles sur le site Géorisques : http://www.georisques.gouv.fr. La présente annonce immobilière a été rédigée sous la responsabilité éditoriale de M Michel-Ange Alarcon mandataire indépendant en immobilier (sans détention de fonds), agent commercial de la SAS I@D France immatriculé au RSAC de PERPIGNAN sous le numéro 448396275, titulaire de la carte de démarchage immobilier pour le compte de la société I@D France SAS.
Ce mois
Cette annonce est récente
À proximité
Recherche des commodités à proximité...
Détails de l'annonce
Localisation
Ville
Saint-Féliu-d'Amont
Pays
FR
Surfaces / Pièces / Composition
Nombre d’étages
Chauffage et diagnostics
Diagnostic de performance énergétique (DPE)
a
b
c
d
e
f
g
Indice d'émission de gaz à effet de serre (GES)
a
b
c
d
e
f
g
