Trouver...

Language: FR

Devise: EUR

Vente Pavillon 7 pièces

Publié le 25 February 2026
Type
Bien immobilier
Tarif
344 000 €
Chambres
5
Salles de bain
0

Vente Pavillon 7 pièces

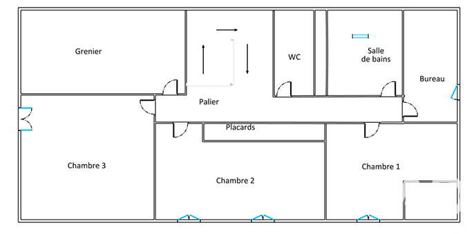
Iad France - Mélanie Jolivet vous propose : PAVILLON D'EXCEPTION A LUISANT - Secteur calme en impasse, proche des écoles - Idéal pour votre famille ! Son entrée vous mène sur un séjour traversant et lumineux avec sa cheminée et son accès direct à la terrasse d'environ 24 m² côté jardin, puis vers une cuisine aménagée et entièrement équipée. Vous découvrez ensuite deux chambres de plain pied, un dressing, une salle d'eau aménagée, ainsi qu'un WC séparé. À l'étage, le palier dispose de grands placards et dessert trois belles chambres, un bureau, une salle de bain, un wc séparé, ainsi qu'un espace de grenier à usage de rangement. Son sous-sol complet vous permettra de mettre à l'abri deux voitures, de bricoler dans votre atelier carrelé, et de conserver vos meilleurs crus dans la cave. Il dispose également d'une chaufferie / buanderie et d'une pièce à usage de rangement (ou pourquoi pas de salle de jeu) qui vous donneront accès au jardin entièrement clos et sans aucun vis-à-vis. Pour votre confort, ce pavillon est équipé de la fibre optique, d'un chauffage au gaz de ville, du tout-à-l'égout et de nombreux espaces de rangement. Ne manquez pas cette opportunité rare de vous installer dans un pavillon familial spacieux à l'intérieur et aux extérieurs parfaitement entretenus. Contactez votre conseillère dès aujourd'hui ! Honoraires d'agence à la charge du vendeur. Information d'affichage énergétique sur ce bien : classe ENERGIE D indice 147 et classe CLIMAT D indice 31. Les informations sur les risques auxquels ce bien est exposé, y compris l'obligation légale de débroussaillement, sont disponibles sur le site Géorisques : http://www.georisques.gouv.fr. La présente annonce immobilière a été rédigée sous la responsabilité éditoriale de Mme Mélanie Jolivet mandataire indépendant en immobilier (sans détention de fonds), agent commercial de la SAS I@D France immatriculé au RSAC de Chartres sous le numéro 914117734, titulaire de la carte de démarchage immobilier pour le compte de la société I@D France SAS.
Ce mois Cette annonce est récente

À proximité

Recherche des commodités à proximité...

Détails de l'annonce

Localisation

Ville
Luisant
Pays
FR

Diagnostics / Énergie

Diagnostic DPE
147
Diagnostic GES
31

Surfaces / Pièces / Composition

Nombre d’étages

Chauffage et diagnostics

Diagnostic de performance énergétique (DPE)
a
b
c
d
e
f
g
Indice d'émission de gaz à effet de serre (GES)
a
b
c
d
e
f
g
Rappelez-moi