Type
Bien immobilierTarif
75 000 €Chambres
1Salles de bain
0Vente Maison de village 4 pièces
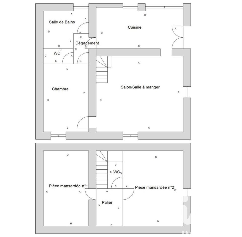
Iad France - Virginie Muller vous propose : TROP TARD pour le moment + SOUS OFFRE + Maison de Village 3 chambres avec Jardin et dépendances en pierre à Ciron - Idéal pour Amoureux de la Nature, premier achat ou vie de famille. Nichée au cOEur du village de Scoury, cette maison offre un cadre de vie de campagne avec accès proche aux commodités et écoles, un jardin arboré et ses deux dépendances en ruine à repenser. D'une surface totale de 80.9 m², cette maison à l'atmosphère 'maison de vacances' deviendra peut-être votre résidence familiale principale. Deux accès possibles. * La répartition bien pensée en rez-de -chaussée (vie de plain-pied) : Soyez accueillis par la cuisine aménagée fraichement posée. À suivre un vaste salon / séjour de 26 m²(double exposition). Une partie nuit comprenant une chambre, salle de bains et WC indépendant (accessible également par la cuisine) * A l'étage, révélez le cachet de deux pièces mansardées lumineuses, second WC indépendant pour plus de practicité. - L'ensemble est en bon état général - * Technique : double vitrage - maison reliée à l'assainissement collectif - chauffage électrique pompe à chaleur- zone non inondable. Le tout élevé sur cave et cellier en rez-de-jardin- possibilité de stationnement sur terrain. Contactez-moi dès maintenant pour organiser une visite et découvrir cette propriété pleine de potentiel. * A noter : une jolie dépendance en pierre de près de 200 m² sur 4887 m² de terrain en face, de l'autre côté de la route, cherche également son nouveau propriétaire et peut être couplée à cette acquisition. Honoraires d'agence à la charge du vendeur. Information d'affichage énergétique sur ce bien : classe ENERGIE D indice 206 et classe CLIMAT B indice 6. Les informations sur les risques auxquels ce bien est exposé, y compris l'obligation légale de débroussaillement, sont disponibles sur le site Géorisques : http://www.georisques.gouv.fr. La présente annonce immobilière a été rédigée sous la responsabilité éditoriale de Mme Virginie Muller mandataire indépendant en immobilier (sans détention de fonds), agent commercial de la SAS I@D France immatriculé au RSAC de CHATEAUROUX sous le numéro 948424593, titulaire de la carte de démarchage immobilier pour le compte de la société I@D France SAS.
Ce mois
Cette annonce est récente
À proximité
Recherche des commodités à proximité...
Détails de l'annonce
Localisation
Ville
Ciron
Pays
FR
Diagnostics / Énergie
Diagnostic DPE
206
Diagnostic GES
6
Surfaces / Pièces / Composition
Nombre d’étages
2
Chauffage et diagnostics
Diagnostic de performance énergétique (DPE)
a
b
c
d
e
f
g
Indice d'émission de gaz à effet de serre (GES)
a
b
c
d
e
f
g
