Trouver...

Language: FR

Devise: EUR

Vente Immeuble 320 m²

Publié le 12 March 2026
Type
Bien immobilier
Tarif
375 000 €
Chambres
0
Salles de bain
0

Vente Immeuble 320 m²

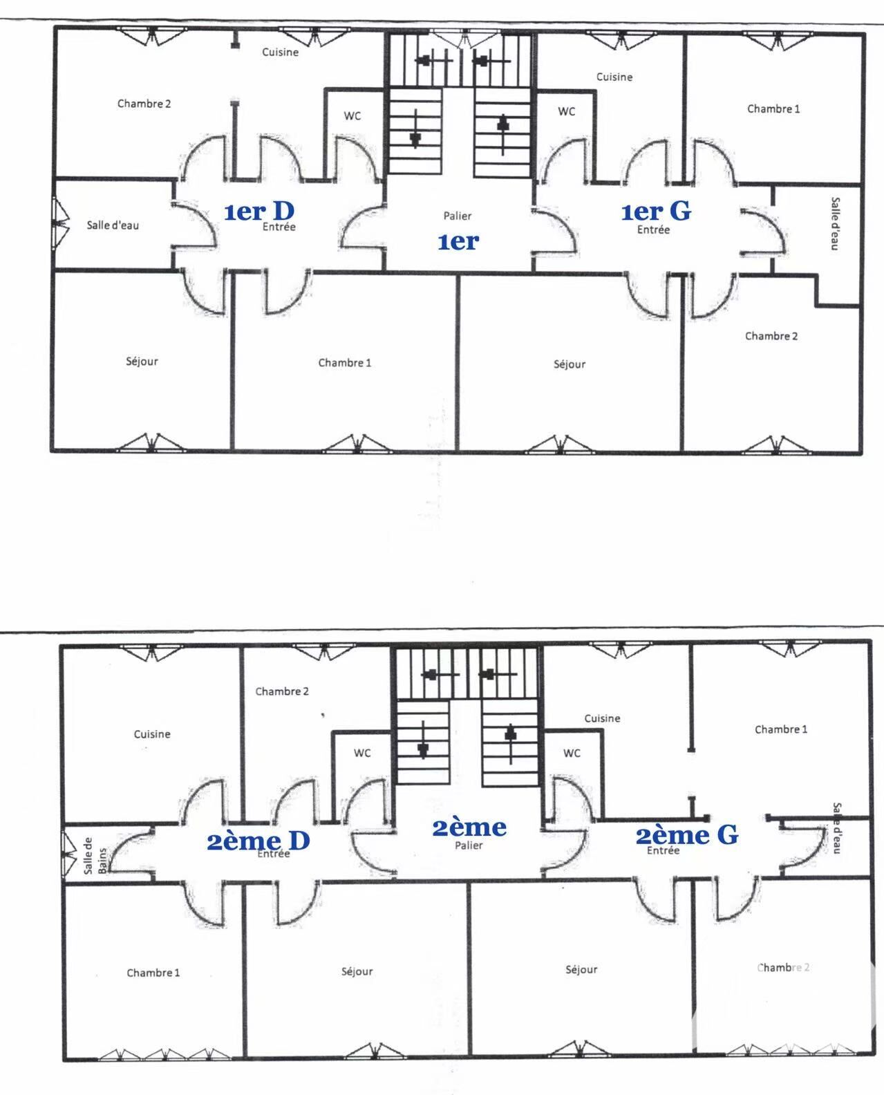
Iad France - Yuan Wong vous propose : Un immeuble composé de 6 appartements. Chaque étage comprend 2 logements. Au rez-de-chaussée et au 1er étage, il y a 4 appartements de type 3 pièces d’environ 55 m² chacun. Au 2ᵉ étage, se trouvent 2 appartements d’environ 50 m² chacun. L’ensemble de l’immeuble est actuellement vendu avec les locataires. Vendu occupé, bail nue. Tous à jour de loyer. Loyer 3300€ / mois. Honoraires d'agence à la charge du vendeur. Bien non soumis au DPE. Les informations sur les risques auxquels ce bien est exposé, y compris l'obligation légale de débroussaillement, sont disponibles sur le site Géorisques : http://www.georisques.gouv.fr. La présente annonce immobilière a été rédigée sous la responsabilité éditoriale de Mme Yuan Wong mandataire indépendant en immobilier (sans détention de fonds), agent commercial de la SAS I@D France immatriculé au RSAC de nanterre sous le numéro 924957293, titulaire de la carte de démarchage immobilier pour le compte de la société I@D France SAS.
Cette semaine Cette annonce est récente

À proximité

Recherche des commodités à proximité...

Détails de l'annonce

Localisation

Ville
Montargis
Pays
FR

Surfaces / Pièces / Composition

Nombre d’étages
3

Chauffage et diagnostics

Diagnostic de performance énergétique (DPE)
a
b
c
d
e
f
g
Indice d'émission de gaz à effet de serre (GES)
a
b
c
d
e
f
g
Rappelez-moi