Type
Bien immobilierTarif
169 000 €Chambres
2Salles de bain
0Vente Appartement 4 pièces
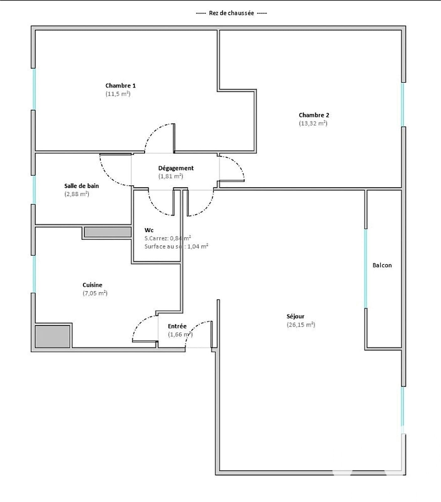
Iad France - Christelle Quattrucci vous propose : Quartier recherché La Villa - Fenêtres PVC Double vitrage - Balcon avec vue arborée - Cave - Grenier 15 m² À seulement 10 minutes à pied du RER C / D de Juvisy-sur-Orge et 2 minutes du Port aux Cerises, venez découvrir cet appartement 4 pièces situé en rez-de-chaussée surélevé, au sein d’un environnement calme et verdoyant. Dès l’entrée, vous serez séduit par un séjour double lumineux, ouvrant sur un balcon exposé sud-ouest et offrant une agréable vue arborée. La configuration permet aisément la création d’une 3ème chambre, selon vos besoins. La cuisine indépendante complète harmonieusement l’espace de vie. Côté nuit, l’appartement dispose de deux chambres avec placards et un WC séparé. Les + qui font la différence : Fenêtres PVC double vitrage (2025) Cave de 12 m² avec électricité Grenier de 15 m² Les charges comprennent l’eau froide ainsi que le chauffage. Un bien rare sur le secteur, alliant localisation recherchée, volumes et potentiel, à proximité immédiate des transports et des espaces verts. À visiter sans tarder ! La presente annonce immobiliere vise 3 lots situés dans une copropriété de 105 lots au total et ne faisant l'objet d'aucune procédure en cours citée à l'article L. 721-1 du code de la construction et de l'habitation. Montant moyen mensuel de charges déclaré par le vendeur : 265€ par mois (soit 3180 € annuel). Honoraires d'agence à la charge du vendeur. Information d'affichage énergétique sur ce bien : classe ENERGIE E indice 312 et classe CLIMAT E indice 57. Les informations sur les risques auxquels ce bien est exposé, y compris l'obligation légale de débroussaillement, sont disponibles sur le site Géorisques : http://www.georisques.gouv.fr. La présente annonce immobilière a été rédigée sous la responsabilité éditoriale de Mme Christelle Quattrucci mandataire indépendant en immobilier (sans détention de fonds), agent commercial de la SAS I@D France immatriculé au RSAC de Evry sous le numéro 822751301, titulaire de la carte de démarchage immobilier pour le compte de la société I@D France SAS.
À proximité
Recherche des commodités à proximité...
Détails de l'annonce
Localisation
Ville
Draveil
Pays
FR
Diagnostics / Énergie
Diagnostic DPE
312
Diagnostic GES
57
Surfaces / Pièces / Composition
Nombre d’étages
3
Chauffage et diagnostics
Diagnostic de performance énergétique (DPE)
a
b
c
d
e
f
g
Indice d'émission de gaz à effet de serre (GES)
a
b
c
d
e
f
g
