Type
Bien immobilierTarif
189 000 €Chambres
0Salles de bain
0Vente Immeuble 251 m²
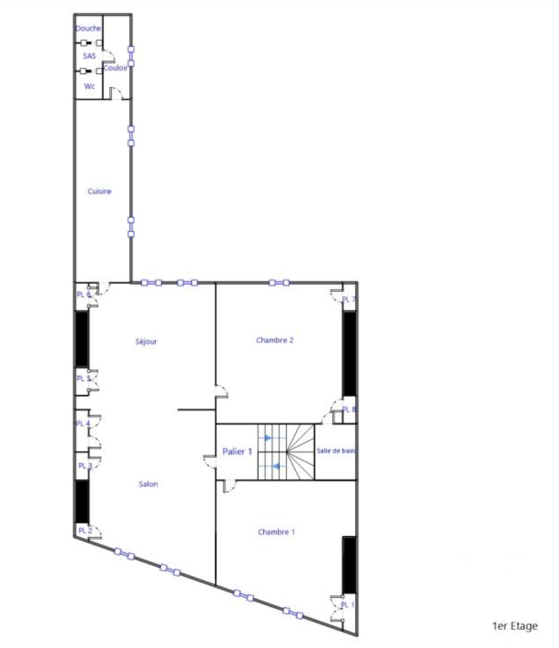
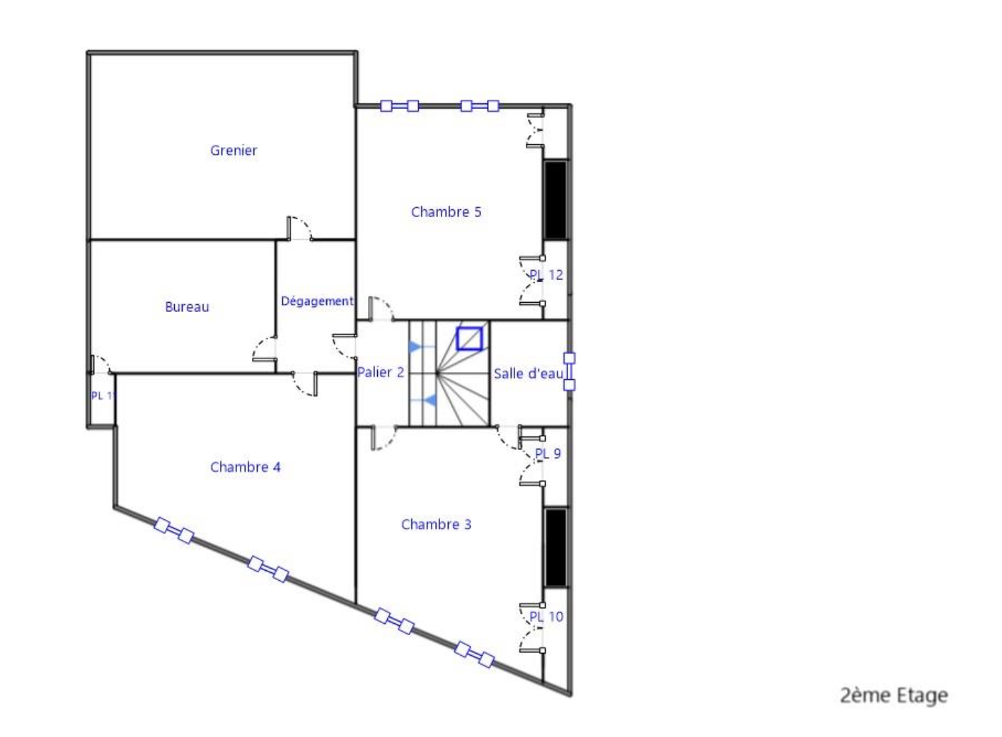
Iad France - Arthur Pype vous propose : Immeuble de rapport à fort potentiel – Centre-ville de Châlons-en-Champagne Idéalement situé en plein centre-ville de Châlons-en-Champagne, cet immeuble offre une opportunité rare pour un projet d’investissement et de valorisation. L’ensemble immobilier se compose : Au rez-de-chaussée, d’un appartement de type 4 bénéficiant d’un rez-de-jardin, un véritable luxe en centre-ville, actuellement loué 600 € / mois. Au premier étage, d’un grand appartement de type 3 et un studio d’environ 20 m² Au deuxième étage possibilité d’optimiser l’espace pour créer deux à trois logements supplémentaires selon la configuration et le projet envisagé. Toiture et charpente en bon état, offrant une base saine pour le bâtiment. Des travaux de rénovation sont à prévoir, permettant une revalorisation globale de l’immeuble et une rentabilité intéressante à terme. Un bien idéal pour investisseurs à la recherche d’un projet modulable, avec un fort potentiel locatif et patrimonial en cOEur de ville. Honoraires d'agence à la charge du vendeur. Information d'affichage énergétique sur ce bien : classe ENERGIE E indice 273 et classe CLIMAT E indice 59. Les informations sur les risques auxquels ce bien est exposé, y compris l'obligation légale de débroussaillement, sont disponibles sur le site Géorisques : http://www.georisques.gouv.fr. La présente annonce immobilière a été rédigée sous la responsabilité éditoriale de M Arthur Pype mandataire indépendant en immobilier (sans détention de fonds), agent commercial de la SAS I@D France immatriculé au RSAC de CHALONS EN CHAMPAGNE sous le numéro 913835013, titulaire de la carte de démarchage immobilier pour le compte de la société I@D France SAS.
Ce mois
Cette annonce est récente
À proximité
Recherche des commodités à proximité...
Détails de l'annonce
Localisation
Ville
Châlons-en-Champagne
Pays
FR
Diagnostics / Énergie
Diagnostic DPE
273
Diagnostic GES
59
Surfaces / Pièces / Composition
Nombre d’étages
2
Chauffage et diagnostics
Diagnostic de performance énergétique (DPE)
a
b
c
d
e
f
g
Indice d'émission de gaz à effet de serre (GES)
a
b
c
d
e
f
g
