Vente Murs commerciaux 190 m²
Type
Bien immobilierTarif
500 000 €Chambres
0Salles de bain
0Vente Murs commerciaux 190 m²
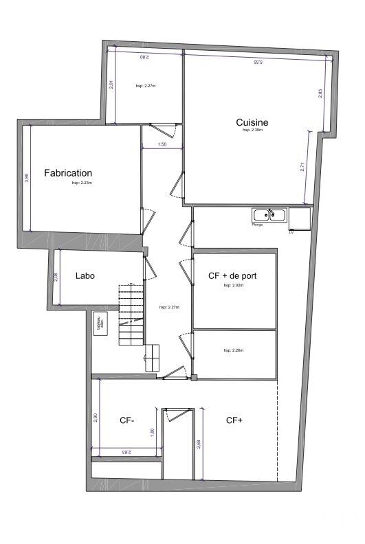
Iad France - Julien Bernardini (06 23 16 40 91) vous propose : Local avec Extraction à Paris 20e : . / . -Surface : 190 m² environ, RDC : 60 m² environ, Sous-sol : 130 m² environ aménagé laboratoire. / . -Eléments de cuisine compris (Tables réfrigérées 3 et 4 portes, chambres froides + et -, monte-charges,. ) - Linéaire 7 m, 2 portes d'entrées / sorties. / . -Extraction 300mm en 2 conduits de 200mm. / . -Loyer : 40-45K€ / an, -Charge : 500€ / mois - 6000€ / an, Foncière : 1302 € / an -Rentabilité : 7,5 à 9% brute. / . -Metro 3bis : pelleport, Proche ligne 3 et Boulevards maréchaux Copro : 26 lots (pas de procédures en cours). / . - Opportunité investisseurs ou propriétaires exploitant, Idéal laboratoire ou Dark Kitchen, peu d'aménagements, Possibilité de restaurant : Beau linéaire, RDC avec lumière traversante (rue - cour). / . À SAISIR RAPIDEMENT. Information d'affichage énergétique sur le bien associé à cette annonce : DPE NS indice 0 et GES NS indice 0. La présente annonce immobilière a été rédigée sous la responsabilité éditoriale de M. Julien Bernardini (ID 79749), Agent Commercial mandataire en immobilier immatriculé au Registre Spécial des Agents Commerciaux (RSAC) du Tribunal de Commerce de VERSAILLES sous le numéro 499641314 Retrouvez tous nos biens sur notre site internet. www.iadfrance.fr.
Détails de l'annonce
Localisation
Ville
Paris
Pays
FR
Surfaces / Pièces / Composition
Nombre d’étages
Chauffage et diagnostics
Diagnostic de performance énergétique (DPE)
a
b
c
d
e
f
g
Indice d'émission de gaz à effet de serre (GES)
a
b
c
d
e
f
g
