Type
Bien immobilierTarif
284 000 €Chambres
2Salles de bain
0Vente Appartement 3 pièces
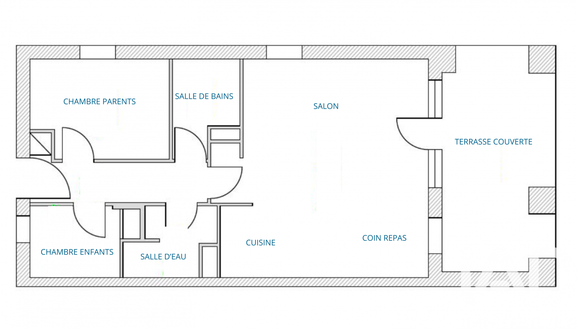
Iad France - Florie Chartrou vous propose : INVESTISSEMENT LOCATION AIRBNB SANS COMPENSATION ! Liberté totale d’exploitation avec une belle rentabilité ! Vous cherchez un bien qui combine rentabilité, souplesse et plaisir personnel ? Ce T3 meublé coche toutes les cases. Ici, vous êtes propriétaire d’un véritable outil d’investissement avec un atout devenu précieux : - Vous venez en vacances quand vous voulez - La location saisonnière est autorisée, dans un secteur où les nouvelles autorisations sont désormais gelées. - Aucun bail commercial en cours : vous louez quand vous voulez, comme vous voulez, au prix que vous voulez Il se compose : - De deux chambres (une avec lits superposés et rangement, une chambre double avec armoire), - D’une salle de bain avec baignoire, - D’une salle d’eau avec douche et WC, - D’une cuisine équipée ouverte sur un espace repas convivial pour 6 / 8 personnes, - D’un double salon avec banquette convertible (capacité de couchage 6 personnes maxi) - À l’extérieur, terrasse couverte et jardinet Dans une résidence pensée pour le confort, le calme et la sécurité : - Piscine et terrain de tennis, - Parking avec bornes de recharge électrique, - Parc paysager avec une vue imprenable sur l’océan, - Gardien présent l’été, - Piste cyclable et arrêt de bus au pied de la résidence, - Environnement ultra calme, tout en restant proche des commodités, - Résidence très bien fréquentée, cadre serein assuré. Côté technique et copropriété : - Ravalement de façade réalisé en 2022, - Compteurs divisionnaires pour l’eau et l’électricité (vous payez uniquement votre consommation incluse aux charges de copropriété), - Aucun gros investissement à prévoir Un bien rare sur le marché, offrant un véritable équilibre entre investissement rentable et pied-à-terre personnel, dans un cadre naturel exceptionnel ! Dossier et informations complémentaires sur demande. La presente annonce immobiliere vise 2 lots situés dans une copropriété de 268 lots au total et ne faisant l'objet d'aucune procédure en cours citée à l'article L. 721-1 du code de la construction et de l'habitation. Montant moyen mensuel de charges déclaré par le vendeur : 185.33€ par mois (soit 2224 € annuel). Honoraires d'agence à la charge du vendeur. Information d'affichage énergétique sur ce bien : classe ENERGIE D indice 220 et classe CLIMAT B indice 8. Les informations sur les risques auxquels ce bien est exposé, y compris l'obligation légale de débroussaillement, sont disponibles sur le site Géorisques : http://www.georisques.gouv.fr. La présente annonce immobilière a été rédigée sous la responsabilité éditoriale de Mme Florie Chartrou mandataire indépendant en immobilier (sans détention de fonds), agent commercial de la SAS I@D France immatriculé au RSAC de Bayonne sous le numéro 810743047, titulaire de la carte de démarchage immobilier pour le compte de la société I@D France SAS.
Ce mois
Cette annonce est récente
À proximité
Recherche des commodités à proximité...
Détails de l'annonce
Localisation
Ville
Hendaye
Pays
FR
Diagnostics / Énergie
Diagnostic DPE
220
Diagnostic GES
8
Chauffage et diagnostics
Diagnostic de performance énergétique (DPE)
a
b
c
d
e
f
g
Indice d'émission de gaz à effet de serre (GES)
a
b
c
d
e
f
g
