Type
Bien immobilierTarif
117 500 €Chambres
0Salles de bain
0Vente Immeuble 121 m²
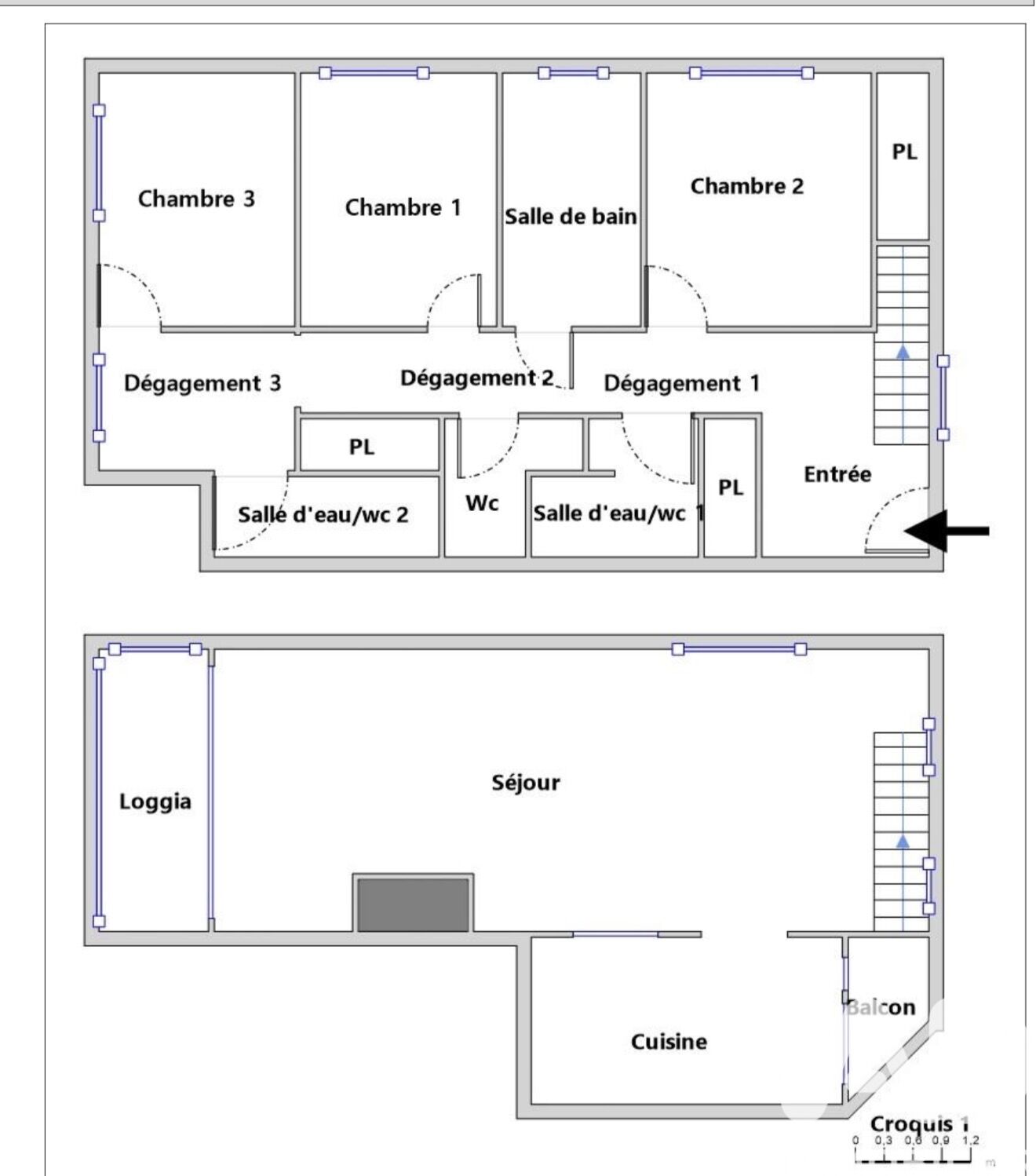
Iad France - Jessica Anger vous propose : Immeuble avec un local commercial de 29 m², possible de changement de destination en habitation. Un appartement de 72 m² sur 2 niveaux avec cuisine aménagée, un salon / chambre, séjour, salle de douche, toilettes et 2 chambres au 2ème. Possibilité d'aménager un logement supplémentaire au rez de chaussée. Cour avec parking, cave Proche des commerces Idéal pour investisseur ! Honoraires d'agence à la charge du vendeur. Information d'affichage énergétique sur ce bien : classe ENERGIE F indice 378 et classe CLIMAT C indice 12. Les informations sur les risques auxquels ce bien est exposé, y compris l'obligation légale de débroussaillement, sont disponibles sur le site Géorisques : http://www.georisques.gouv.fr. La présente annonce immobilière a été rédigée sous la responsabilité éditoriale de Mme Jessica Anger mandataire indépendant en immobilier (sans détention de fonds), agent commercial de la SAS I@D France immatriculé au RSAC de ANGERS sous le numéro 822536462, titulaire de la carte de démarchage immobilier pour le compte de la société I@D France SAS.
À proximité
Recherche des commodités à proximité...
Détails de l'annonce
Localisation
Ville
Doué-en-Anjou
Pays
FR
Diagnostics / Énergie
Diagnostic DPE
313
Diagnostic GES
12
Surfaces / Pièces / Composition
Nombre d’étages
2
Chauffage et diagnostics
Diagnostic de performance énergétique (DPE)
a
b
c
d
e
f
g
Indice d'émission de gaz à effet de serre (GES)
a
b
c
d
e
f
g
