Type
Bien immobilierTarif
500 000 €Chambres
3Salles de bain
0Vente Appartement 4 pièces
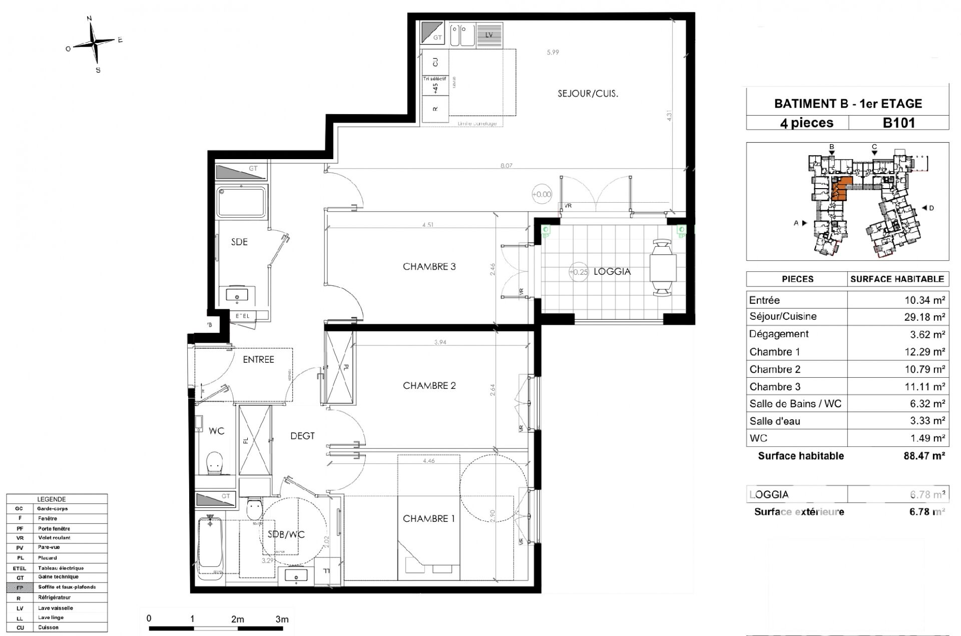
Iad France - Eva Ye vous propose : Appartement 4 pièces – 88 m² – Résidence 2025 – 2 parkings – Le Plessis-Robinson Situé à Le Plessis-Robinson, dans une résidence moderne livrée en 2025, découvrez cet appartement lumineux de 88,47 m² au 1er étage d’un immeuble de 6 étages. Il se compose d’un séjour spacieux et lumineux de 30 m², de 3 chambres confortables, d’une salle de bain avec WC ainsi que d’une salle d’eau supplémentaire. Les espaces sont fonctionnels et adaptés à une vie familiale. Exposition Sud et Est offrant une belle luminosité tout au long de la journée. Prestations de qualité : fibre optique, chauffage au gaz par distribution de chaleur, ventilation mécanique. Résidence sécurisée avec digicode, interphone, porte blindée, alarme et vidéosurveillance. Immeuble accessible aux personnes à mobilité réduite. Deux places de parking complètent ce bien. Situation idéale : à 5 minutes à pied du tramway T10 (accès RER B) et à 10 minutes à pied du tramway T6 (connexion ligne 13). Paris se situe à environ 6 km. Informations sur les frais de notaire disponibles sur demande. Contactez-nous pour plus d’informations ou pour organiser une visite. La presente annonce immobiliere vise 3 lots situés dans une copropriété de 316 lots au total et ne faisant l'objet d'aucune procédure en cours citée à l'article L. 721-1 du code de la construction et de l'habitation. Montant moyen mensuel de charges déclaré par le vendeur : 238.5€ par mois (soit 2862 € annuel). Honoraires d'agence à la charge du vendeur. Information d'affichage énergétique sur ce bien : classe ENERGIE C indice 63 et classe CLIMAT C indice 12. Les informations sur les risques auxquels ce bien est exposé, y compris l'obligation légale de débroussaillement, sont disponibles sur le site Géorisques : http://www.georisques.gouv.fr. La présente annonce immobilière a été rédigée sous la responsabilité éditoriale de Mme Eva Ye mandataire indépendant en immobilier (sans détention de fonds), agent commercial de la SAS I@D France immatriculé au RSAC de EVRY COURCOURONNES sous le numéro 992424226, titulaire de la carte de démarchage immobilier pour le compte de la société I@D France SAS.
Cette semaine
Cette annonce est récente
À proximité
Recherche des commodités à proximité...
Détails de l'annonce
Localisation
Ville
Le Plessis-Robinson
Pays
FR
Diagnostics / Énergie
Diagnostic DPE
63
Diagnostic GES
12
Surfaces / Pièces / Composition
Nombre d’étages
6
Chauffage et diagnostics
Diagnostic de performance énergétique (DPE)
a
b
c
d
e
f
g
Indice d'émission de gaz à effet de serre (GES)
a
b
c
d
e
f
g
