Trouver...

Language: FR

Devise: EUR

Vente Boulangerie 70 m²

Publié le 30 January 2025
Type
Bien immobilier
Tarif
39 000 €
Chambres
0
Salles de bain
0

Vente Boulangerie 70 m²

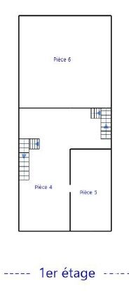
Iad France - Stephane Da Ponte (06 51 04 95 04) vous propose : ACTIVITE ANNUELLE : Boulangerie-Pâtisserie avec logement F5 à Pinet (34850) À vendre, fonds de commerce boulangerie-pâtisserie idéalement situé à Pinet (34850), charmant village de l'Hérault comptant environ 2 280 habitants. L'établissement bénéficie d'un emplacement stratégique à l'angle d'une rue, à proximité immédiate d'une place avec arrêt minute, facilitant l'accès pour la clientèle. Le point de vente de 14 m² environ est équipé de vitrines intérieures et extérieures récentes, ainsi que de réfrigérateurs neufs. Le fonds de commerce dispose d'un laboratoire d'une surface de 12 m² environ, d'un four récent, de deux congélateurs quasi neufs, d'un diviseur, d'une façonneuse, d'une machine à chocolat. et d'un système de climatisation. Une réserve de 44 m² environ intégrant ce matériel offre également un espace de stockage généreux. Le fonds de commerce est vendu avec son logement attenant, un type F5 de 92 m² environ comprenant un séjour avec cuisine, quatre chambres, une salle d'eau et un grenier aménageable de 47 m² environ. Le logement nécessite quelques travaux, offrant ainsi la possibilité de le personnaliser selon vos goûts. Le loyer global (boulangerie + logement) est de 685 euros hors charges. Le bail classique a été signé en 2022 pour une durée de 3 ans. Pinet dispose de divers commerces de proximité, notamment une épicerie, une pizzeria, un salon esthétique. situés à quelques pas de la boulangerie, contribuant à une attractivité commerciale. Il existe une opportunité de diversifier l'activité en proposant une offre de snacking. Gros développement possible Cette boulangerie-pâtisserie avec logement attenant représente une excellente opportunité pour un artisan souhaitant s'installer dans une commune en croissance, avec un cadre de vie agréable et une clientèle fidèle. Pour plus d'informations ou pour organiser une visite, n'hésitez pas à me contacter. Information d'affichage énergétique sur le bien associé à cette annonce : DPE NS indice et GES NS indice. La présente annonce immobilière a été rédigée sous la responsabilité éditoriale de M. Stephane Da Ponte (ID 23085), Agent Commercial mandataire en immobilier immatriculé au Registre Spécial des Agents Commerciaux (RSAC) du Tribunal de Commerce de BEZIERS sous le numéro 538840331 Retrouvez tous nos biens sur notre site internet. www.iadfrance.fr.

À proximité

Recherche des commodités à proximité...

Détails de l'annonce

Localisation

Ville
Pinet
Pays
FR

Surfaces / Pièces / Composition

Nombre d’étages

Chauffage et diagnostics

Diagnostic de performance énergétique (DPE)
a
b
c
d
e
f
g
Indice d'émission de gaz à effet de serre (GES)
a
b
c
d
e
f
g
Rappelez-moi