Type
Bien immobilierTarif
310 000 €Chambres
0Salles de bain
0Vente Terrain à bâtir 826 m²
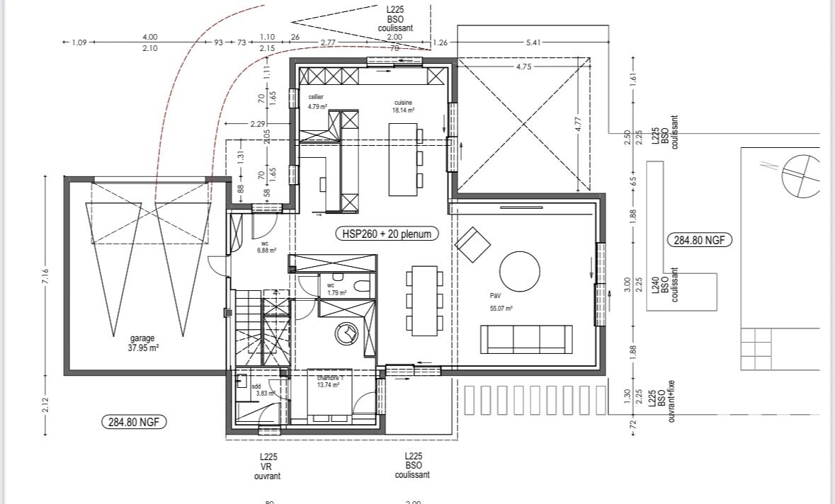
Iad France - Pauline Velozzo vous propose : Très belle opportunité à saisir - LISSIEU limite Limonest - Secteur résidentiel et calme Terrain plat et viabilisé de 826 m² avec permis de construire - zone URI2B. Localisation idéale, à proximité des commerces, écoles, transports. Architecte du projet : Martin&Martin - Prestations haut de gamme - RT2020 - Très belle orientation EST-SUD-OUEST Permis obtenu pour une maison contemporaine d'habitation en R + 1 d'une surface de plancher de 175 m² environ. PIèce à vivre de près de 75 m², 4 chambres. Grand garage (près de 40 m²). Piscine. ATOUT MAJEUR : Lancement de la construction possible dès le lendemain de l'acquisition ! Photos non contractuelles Honoraires d'agence à la charge du vendeur. Bien non soumis au DPE. Les informations sur les risques auxquels ce bien est exposé, y compris l'obligation légale de débroussaillement, sont disponibles sur le site Géorisques : http://www.georisques.gouv.fr. La présente annonce immobilière a été rédigée sous la responsabilité éditoriale de Mme Pauline Velozzo mandataire indépendant en immobilier (sans détention de fonds), agent commercial de la SAS I@D France immatriculé au RSAC de LYON sous le numéro 938283462, titulaire de la carte de démarchage immobilier pour le compte de la société I@D France SAS.
Cette semaine
Cette annonce est récente
À proximité
Recherche des commodités à proximité...
Détails de l'annonce
Localisation
Ville
Lissieu
Pays
FR
Surfaces / Pièces / Composition
Nombre d’étages
Chauffage et diagnostics
Diagnostic de performance énergétique (DPE)
a
b
c
d
e
f
g
Indice d'émission de gaz à effet de serre (GES)
a
b
c
d
e
f
g
