Trouver...

Language: FR

Devise: EUR

Vente Appartement 1 pièce

Publié le 16 March 2026
Type
Bien immobilier
Tarif
85 000 €
Chambres
0
Salles de bain
0

Vente Appartement 1 pièce

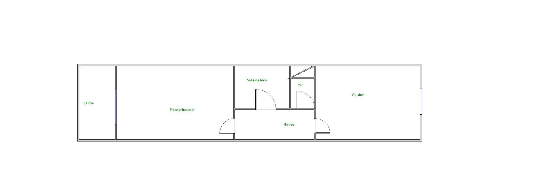
Iad France - Andréa Giannini vous propose : TOULON OUEST / BON RENCONTRE T1 bis traversant de 31 m² avec balcon – Cave – Stationnement libre – Situé à Toulon Ouest, à proximité immédiate des axes routiers et des commodités, découvrez cet appartement T1 traversant de 31 m² à rénover, situé dans une résidence sécurisée de standing des années 70. L’appartement se compose d’une pièce de vie lumineuse, d’une cuisine, d’une salle de bains et bénéficie d’un balcon d’environ 5 m². Grâce à sa configuration, il est possible de repenser facilement l’agencement afin de le transformer en véritable T2, offrant ainsi un beau potentiel de valorisation. Une cave complète ce bien et la résidence dispose d’un stationnement libre dans la copropriété. Des travaux de rénovation sont à prévoir, idéal pour personnaliser l’appartement et optimiser sa rentabilité. Produit idéal pour investisseurs ou premier achat avec projet de rénovation. Résidence bien entretenue, emplacement pratique avec accès rapide aux principaux axes. Pour plus d’informations ou organiser une visite, contactez-moi. La presente annonce immobiliere vise 1 lot situé dans une copropriété de 182 lots au total et ne faisant l'objet d'aucune procédure en cours citée à l'article L. 721-1 du code de la construction et de l'habitation. Montant moyen mensuel de charges déclaré par le vendeur : 59.33€ par mois (soit 712 € annuel). Honoraires d'agence à la charge du vendeur. Information d'affichage énergétique sur ce bien : classe ENERGIE E indice 291 et classe CLIMAT B indice 11. Les informations sur les risques auxquels ce bien est exposé, y compris l'obligation légale de débroussaillement, sont disponibles sur le site Géorisques : http://www.georisques.gouv.fr. La présente annonce immobilière a été rédigée sous la responsabilité éditoriale de Mme Andréa Giannini mandataire indépendant en immobilier (sans détention de fonds), agent commercial de la SAS I@D France immatriculé au RSAC de TOULON sous le numéro 801402819, titulaire de la carte de démarchage immobilier pour le compte de la société I@D France SAS.
Nouveau Cette annonce est récente

À proximité

Recherche des commodités à proximité...

Détails de l'annonce

Localisation

Ville
Toulon
Pays
FR

Diagnostics / Énergie

Diagnostic DPE
291
Diagnostic GES
11

Surfaces / Pièces / Composition

Nombre d’étages
10

Chauffage et diagnostics

Diagnostic de performance énergétique (DPE)
a
b
c
d
e
f
g
Indice d'émission de gaz à effet de serre (GES)
a
b
c
d
e
f
g
Rappelez-moi