Type
Bien immobilierTarif
265 000 €Chambres
2Salles de bain
0Vente Appartement 4 pièces
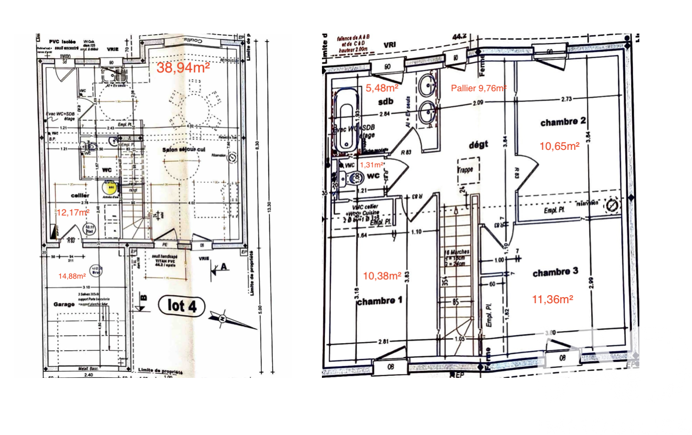
Iad France - Elodie Danza vous propose : Situé au calme et proche de toutes les commodités (écoles, transports, commerces et axes routiers) venez découvrir ce bel appartement récent sans aucuns travaux. Au 3ème étage avec ascenseur, il se compose d'une entrée, une cuisine aménagée et équipée ouverte sur un salon lumineux avec accès à une très grande terrasse (43 m²) bien exposée, une salle de bains avec w. c, un w. c indépendant et deux chambres dont une très grande (env. 21 m²) avec dressing (possibilité d'en faire deux chambres). Vous apprécierez : la qualité de la cuisine et de la salle de bains, le très grand espace extérieur, la luminosité, l'exposition et les deux stationnements en sous sol avec branchement prêt pour borne électrique (borne à installer). Envie d'en savoir plus ? N'hésitez pas à me contacter. La presente annonce immobiliere vise 3 lots situés dans une copropriété de 302 lots au total et ne faisant l'objet d'aucune procédure en cours citée à l'article L. 721-1 du code de la construction et de l'habitation. Montant moyen mensuel de charges déclaré par le vendeur : 257.17€ par mois (soit 3086 € annuel). Honoraires d'agence à la charge du vendeur. Information d'affichage énergétique sur ce bien : classe ENERGIE C indice 70 et classe CLIMAT C indice 15. Les informations sur les risques auxquels ce bien est exposé, y compris l'obligation légale de débroussaillement, sont disponibles sur le site Géorisques : http://www.georisques.gouv.fr. La présente annonce immobilière a été rédigée sous la responsabilité éditoriale de Mme Elodie Danza mandataire indépendant en immobilier (sans détention de fonds), agent commercial de la SAS I@D France immatriculé au RSAC de MELUN sous le numéro 842188518, titulaire de la carte de démarchage immobilier pour le compte de la société I@D France SAS.
Ce mois
Cette annonce est récente
À proximité
Recherche des commodités à proximité...
Détails de l'annonce
Localisation
Ville
Moissy-Cramayel
Pays
FR
Diagnostics / Énergie
Diagnostic DPE
70
Diagnostic GES
15
Surfaces / Pièces / Composition
Nombre d’étages
4
Étage
3
Chauffage et diagnostics
Diagnostic de performance énergétique (DPE)
a
b
c
d
e
f
g
Indice d'émission de gaz à effet de serre (GES)
a
b
c
d
e
f
g
