Type
Bien immobilierTarif
295 000 €Chambres
4Salles de bain
0Vente Maison traditionnelle 7 pièces
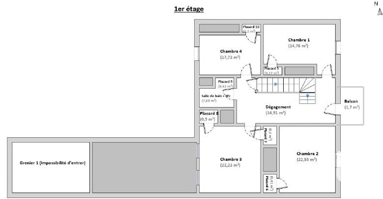
Iad France - Hervé Vacher vous propose : Maison de 212 m² + dépendances – Jardin & charme de l’ancien – Coligny (01270) Un cadre de vie paisible, un potentiel rare À seulement 5 minutes du centre de Coligny, découvrez cette maison de caractère alliant volumes généreux (212 m²), éléments anciens préservés (pierres, poutres, parquet) et confort moderne (rénovation 2018, chauffage performant, fibre). Idéale pour une famille, une activité libérale ou un projet locatif, elle s’implante sur un terrain clos et arboré de 1 331 m², avec de nombreuses possibilités d’aménagement. Agencement & espaces Rez-de-chaussée : Entrée avec rangements Belle pièce de vie de 36,5 m² avec cuisine équipée et poêle à bois Salon lumineux de 24 m² Bureau ou salle de jeux de 22 m² WC indépendant Étage : 4 grandes chambres (15 à 22 m²) dont une avec dressing Salle de bains avec baignoire, vasque en pierre, WC Combles : 115 m² exploitables pour créer une suite parentale, un bureau ou un logement indépendant Extérieurs & dépendances Jardin arboré avec tilleul centenaire Terrasse et cour gravillonnée Dépendance de 80 m² comprenant : Cave voûtée de 45 m² 2 ateliers (17 et 19 m²) Garage double traversant Vue dégagée, sans vis-à-vis Travaux et confort Rénovation complète en 2018 : isolation, menuiseries, électricité, chaudière gaz à condensation Poêle à bois, assainissement collectif, fibre installée Travaux de toiture partiels à prévoir (devis disponible de 15 270€) Potentiel et projets Idéal grande famille ou télétravail Création possible d’un studio locatif ou logement indépendant dans la dépendance Valorisation importante possible via l’aménagement des combles Infos pratiques Commodités, écoles et accès rapides à proximité Ne manquez pas cette opportunité unique à Coligny. Contactez-moi dès aujourd’hui pour programmer une visite ! Honoraires d'agence à la charge du vendeur. Information d'affichage énergétique sur ce bien : classe ENERGIE D indice 240 et classe CLIMAT D indice 39. Les informations sur les risques auxquels ce bien est exposé, y compris l'obligation légale de débroussaillement, sont disponibles sur le site Géorisques : http://www.georisques.gouv.fr. La présente annonce immobilière a été rédigée sous la responsabilité éditoriale de M Hervé Vacher mandataire indépendant en immobilier (sans détention de fonds), agent commercial de la SAS I@D France immatriculé au RSAC de BOURG-EN BRESSE sous le numéro 920997947, titulaire de la carte de démarchage immobilier pour le compte de la société I@D France SAS.
À proximité
Recherche des commodités à proximité...
Détails de l'annonce
Localisation
Ville
Coligny
Pays
FR
Diagnostics / Énergie
Diagnostic DPE
240
Diagnostic GES
39
Surfaces / Pièces / Composition
Nombre d’étages
2
Chauffage et diagnostics
Diagnostic de performance énergétique (DPE)
a
b
c
d
e
f
g
Indice d'émission de gaz à effet de serre (GES)
a
b
c
d
e
f
g
