Type
Bien immobilierTarif
349 000 €Chambres
4Salles de bain
0Vente Maison de village 8 pièces
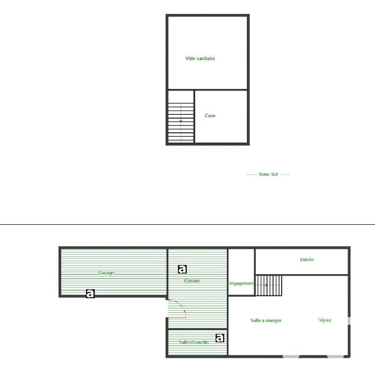
Iad France - Céline Migeon vous propose : Maison Traditionnelle et familiale de plus de 180 m² à Dammartin-en-Serve. Situation privilégiée proche de toutes commodités, des écoles et des bus (express A14), tout en gardant un environnement calme et préservé. Passé l'entrée, vous découvrirez un espace de vie lumineux et spacieux, idéal pour recevoir famille et amis. Les ouvrants en double exposition assurent une luminosité optimale toute la journée. La cuisine à l'agencement très atypique est entièrement équipée et aménagée. Vous aurez également la possibilité de profiter de soirées cosy au coin du poêle à pellets dans le salon chaleureux. Une spacieuse chambre, un bureau avec un accès direct sur l'extérieur, une buanderie, une salle de bain et un WC complète ce niveau. À l'étage, l'espace nuit se compose de 3 chambres confortables aux volumes étonnants (possibilité 4), une salle d'eau et un WC séparé. Côté extérieur, vous pourrez profiter de la tranquillité de votre jardin verdoyant, parfait pour se détendre ou organiser des barbecues entre proches les douces soirées d'été ainsi que d'une remise et d'un atelier. Un garage avec porte électrique et accès direct de l'intérieur complète ce bien. Les expositions sud et ouest permettent de bénéficier d'un ensoleillement optimal tout au long de la journée. Les + : village avec écoles et premiers commerces, tout à l'égout, fibre, volumes, portail électrique, porte garage électrique Un bien à découvrir sans tarder, une visite s'impose ! Honoraires d'agence à la charge du vendeur. Information d'affichage énergétique sur ce bien : classe ENERGIE D indice 211 et classe CLIMAT D indice 33. Les informations sur les risques auxquels ce bien est exposé, y compris l'obligation légale de débroussaillement, sont disponibles sur le site Géorisques : http://www.georisques.gouv.fr. La présente annonce immobilière a été rédigée sous la responsabilité éditoriale de Mme Céline Migeon mandataire indépendant en immobilier (sans détention de fonds), agent commercial de la SAS I@D France immatriculé au RSAC de Versailles sous le numéro 891471104, titulaire de la carte de démarchage immobilier pour le compte de la société I@D France SAS.
À proximité
Recherche des commodités à proximité...
Détails de l'annonce
Localisation
Ville
Dammartin-en-Serve
Pays
FR
Diagnostics / Énergie
Diagnostic DPE
211
Diagnostic GES
33
Surfaces / Pièces / Composition
Nombre d’étages
2
Chauffage et diagnostics
Diagnostic de performance énergétique (DPE)
a
b
c
d
e
f
g
Indice d'émission de gaz à effet de serre (GES)
a
b
c
d
e
f
g
