Type
Bien immobilierTarif
224 900 €Chambres
1Salles de bain
0Vente Appartement 2 pièces
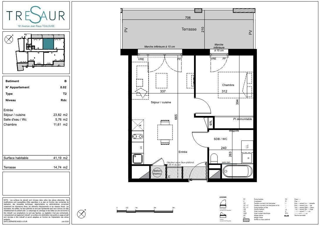
Iad France - Mathis Besson vous propose : RENNES - ÉGLISE SAINT-HÉLIER - APPARTEMENT DE TYPE 2 AVEC TERRASSE ET PARKING EN SOUS-SOL iad France - ALAN BUCHY vous propose en exclusivité : À proximité de toutes les commodités et de la Gare, un appartement de 47,10 m², situé au 5ème étage de la résidence 'LE BELVEDERE', construite en 2013, avec ascenseur et aux normes PMR. Il dispose d’une entrée avec placard / penderie, d’un bel espace de vie comprenant une kitchenette ouverte sur le séjour, avec accès à une terrasse exposée SUD-EST, d’une chambre spacieuse et d’une grande salle d’eau avec wc. Un parking en sous-sol, accessible par l'ascenseur et pouvant être équipée d'une borne de recharge électrique, complète ce bien. Les charges de copropriété incluent entre autres, le chauffage et l'eau chaude, avec des compteurs individuels permettant de maîtriser précisément sa consommation. APPARTEMENT LUMINEUX AVEC UNE BELLE VUE DEGAGÉE ! La presente annonce immobiliere vise 2 lots situés dans une copropriété de 173 lots au total et ne faisant l'objet d'aucune procédure en cours citée à l'article L. 721-1 du code de la construction et de l'habitation. Montant moyen mensuel de charges déclaré par le vendeur : 141.67€ par mois (soit 1700 € annuel). Honoraires d'agence à la charge de l'acquéreur. Prix honoraires inclus : 224900 euros. Prix hors honoraires : 215000 euros. Honoraires TTC à la charge de l'acquéreur (4,60% du prix du bien hors honoraires) : 9900 euros. Information d'affichage énergétique sur ce bien : classe ENERGIE C indice 94 et classe CLIMAT C indice 17. Les informations sur les risques auxquels ce bien est exposé, y compris l'obligation légale de débroussaillement, sont disponibles sur le site Géorisques : http://www.georisques.gouv.fr. La présente annonce immobilière a été rédigée sous la responsabilité éditoriale de M Mathis Besson mandataire indépendant en immobilier (sans détention de fonds), agent commercial de la SAS I@D France immatriculé au RSAC de Rennes sous le numéro 994816833, titulaire de la carte de démarchage immobilier pour le compte de la société I@D France SAS.
À proximité
Recherche des commodités à proximité...
Détails de l'annonce
Localisation
Ville
Rennes
Pays
FR
Diagnostics / Énergie
Diagnostic DPE
94
Diagnostic GES
17
Finances / Mandat / Références
Honoraires
9 €
Surfaces / Pièces / Composition
Nombre d’étages
8
Étage
5
Chauffage et diagnostics
Diagnostic de performance énergétique (DPE)
a
b
c
d
e
f
g
Indice d'émission de gaz à effet de serre (GES)
a
b
c
d
e
f
g
