Trouver...

Language: FR

Devise: EUR

Vente Appartement 3 pièces

Publié le 10 March 2026
Type
Bien immobilier
Tarif
378 000 €
Chambres
2
Salles de bain
0

Vente Appartement 3 pièces

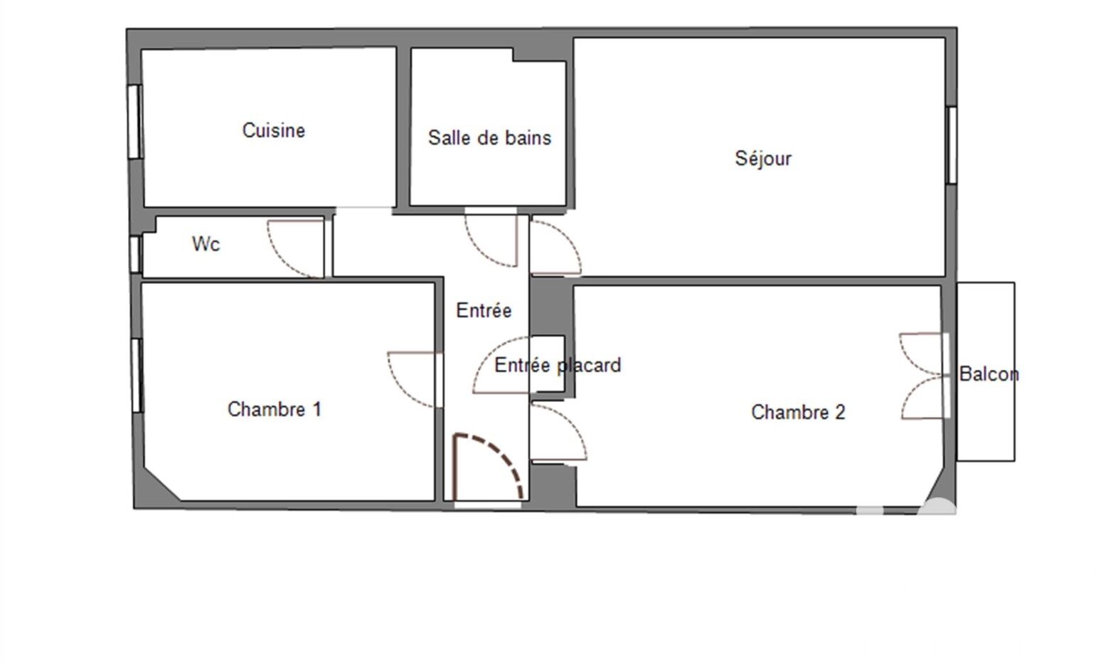
Iad France - Philippe Tran vous propose : Superbe appartement T3 de 63,76 m² situé au 2ème étage d'un immeuble bourgeois construit en 1905, dans le quartier Libération. Ce bien lumineux bénéficie d'une double exposition Sud-Nord et d'un balcon. L'appartement comprend 2 chambres, une cuisine, un séjour spacieux, une salle de bain et des WC séparés. Il est équipé d'un système de climatisation et chauffage, garantissant un confort optimal toute l'année. Excellente performance énergétique avec un DPE classe B (89 kWhep / m². an) et GES classe A (3 kgeqCO2 / m². an). Idéalement situé à proximité des commodités et transports. À 5 minutes de la gare et du tram. Bien libre de toute occupation. Copropriété de 133€ de charges mensuelles, taxe foncière de 702€ annuels. Bonne rentabilité Airbnb CA 10.000e pendant l'été. La presente annonce immobiliere vise 1 lot situé dans une copropriété de 24 lots au total et ne faisant l'objet d'aucune procédure en cours citée à l'article L. 721-1 du code de la construction et de l'habitation. Montant moyen mensuel de charges déclaré par le vendeur : 133.33€ par mois (soit 1600 € annuel). Honoraires d'agence à la charge du vendeur. Information d'affichage énergétique sur ce bien : classe ENERGIE B indice 89 et classe CLIMAT A indice 3. Les informations sur les risques auxquels ce bien est exposé, y compris l'obligation légale de débroussaillement, sont disponibles sur le site Géorisques : http://www.georisques.gouv.fr. La présente annonce immobilière a été rédigée sous la responsabilité éditoriale de M Philippe Tran mandataire indépendant en immobilier (sans détention de fonds), agent commercial de la SAS I@D France immatriculé au RSAC de NICE sous le numéro 513905109, titulaire de la carte de démarchage immobilier pour le compte de la société I@D France SAS.
Cette semaine Cette annonce est récente

À proximité

Recherche des commodités à proximité...

Détails de l'annonce

Localisation

Ville
Nice
Pays
FR

Diagnostics / Énergie

Diagnostic DPE
107
Diagnostic GES
4

Surfaces / Pièces / Composition

Nombre d’étages
3
Étage
2

Chauffage et diagnostics

Diagnostic de performance énergétique (DPE)
a
b
c
d
e
f
g
Indice d'émission de gaz à effet de serre (GES)
a
b
c
d
e
f
g
Rappelez-moi