Type
Bien immobilierTarif
2 155 000 €Chambres
6Salles de bain
0Vente Demeure 10 pièces
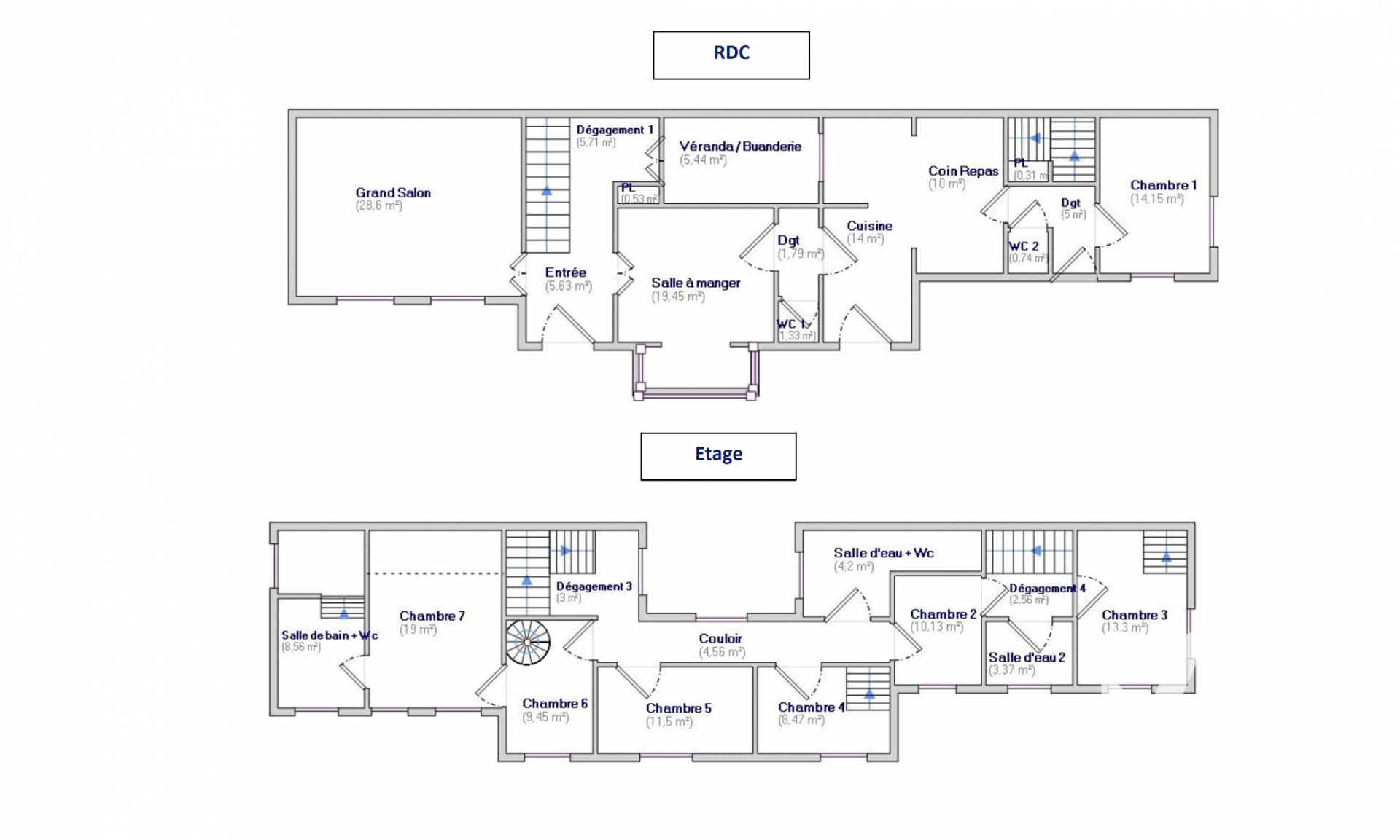
Iad France - Adélaïde Kerautret vous propose : Demeure d’Exception – Quartier des Vallées : 235 m² de Charme sur Parcelle Unique de 1 000 m² Située dans le secteur le plus convoité de Colombes, au cOEur d’une rue piétonne calme et résidentielle, cette propriété rare est un véritable privilège. À seulement 8 minutes à pied de la gare des Vallées (Ligne L – Saint-Lazare en 12 minutes) et au pied des commerces, elle offre une qualité de vie incomparable. Dès l’entrée, l'élégance de l'ancien opère : parquets d'époque, moulures et cheminées. •Au rez-de-chaussée : Une réception baignée de lumière avec un vaste salon et une salle à manger sublimée par un magnifique bow-window. Une grande cuisine dînatoire familiale, une chambre de plain-pied et une buanderie complètent ce niveau. •À l’étage : Une suite parentale magistrale (bureau, dressing, salle de bain et douche) avec accès direct à des combles aménagés. L'espace enfant se compose de 3 chambres (dont 2 avec mezzanines), un bureau et deux salles d'eau. L’Espace Bien-être & Jardin : Le jardin de près de 1 000 m², à l'abri des regards, est un véritable poumon vert. •Côté détente : Une grande terrasse avec barbecue pour vos réceptions. •Le Pool House : Une seconde construction indépendante dédiée au bien-être comprenant une piscine avec nage à contre-courant, un solarium ensoleillé toute la journée, une salle d'eau et une salle de sport privée. Potentiel & Prestations : Cette propriété bénéficie d’un excellent diagnostic énergétique (D). La configuration est unique et modulable : grâce à ses deux entrées indépendantes et ses deux escaliers, la demeure permet très facilement la création de deux habitations distinctes. Les 'Plus' : •Garage double + plusieurs emplacements sur le terrain. •Sous-sol total avec deux grandes caves. •Parking vélos couvert. •Sectorisation scolaire recherchée. Une opportunité rare de s’offrir une propriété familiale de prestige aux portes de Paris. Professionnels de l'immobilier : inter-cabinet bienvenu. Je suis ouverte au partage d’honoraires pour la présentation de vos acquéreurs qualifiés. Honoraires d'agence à la charge du vendeur. Information d'affichage énergétique sur ce bien : classe ENERGIE E indice 255 et classe CLIMAT D indice 49. Les informations sur les risques auxquels ce bien est exposé, y compris l'obligation légale de débroussaillement, sont disponibles sur le site Géorisques : http://www.georisques.gouv.fr. La présente annonce immobilière a été rédigée sous la responsabilité éditoriale de Mme Adélaïde Kerautret mandataire indépendant en immobilier (sans détention de fonds), agent commercial de la SAS I@D France immatriculé au RSAC de NANTERRE sous le numéro 848270591, titulaire de la carte de démarchage immobilier pour le compte de la société I@D France SAS.
Nouveau
Cette annonce est récente
À proximité
Recherche des commodités à proximité...
Détails de l'annonce
Localisation
Ville
Colombes
Pays
FR
Diagnostics / Énergie
Diagnostic DPE
255
Diagnostic GES
49
Surfaces / Pièces / Composition
Nombre d’étages
3
Chauffage et diagnostics
Diagnostic de performance énergétique (DPE)
a
b
c
d
e
f
g
Indice d'émission de gaz à effet de serre (GES)
a
b
c
d
e
f
g
