Type
Bien immobilierTarif
208 000 €Chambres
2Salles de bain
0Vente Appartement 4 pièces
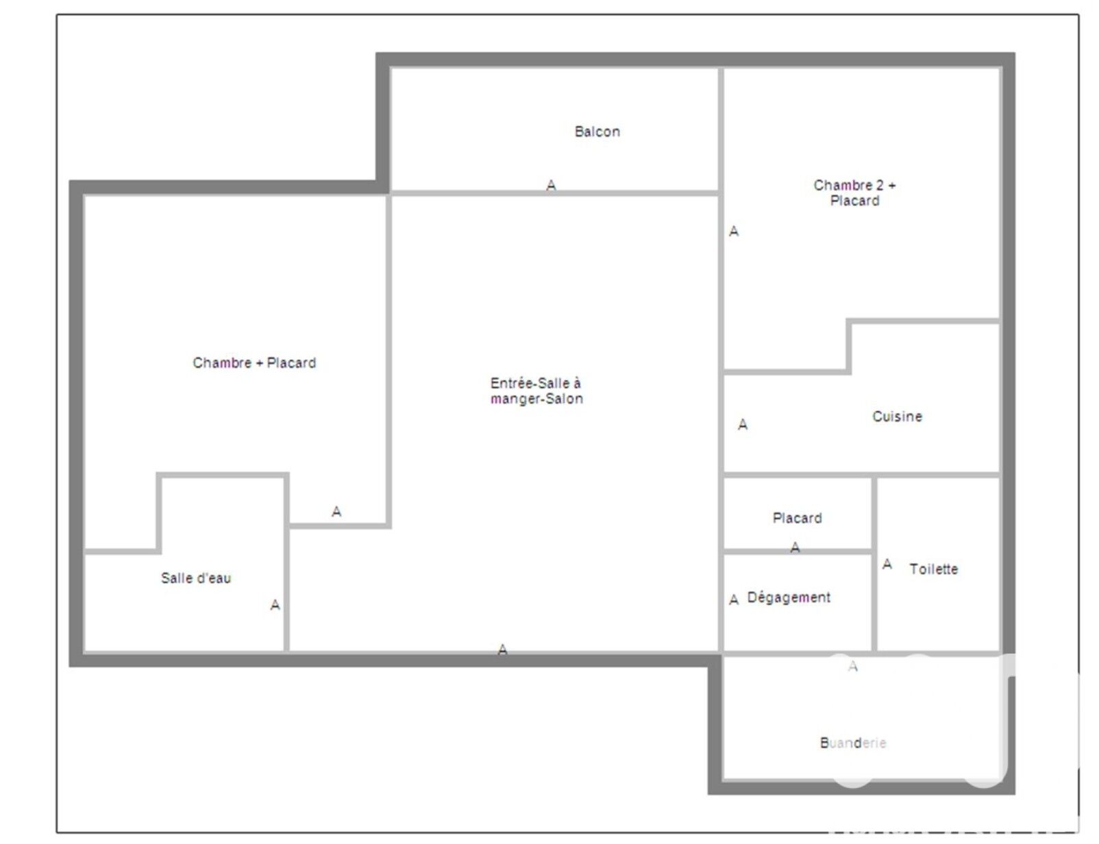
Iad France - Charlotte Coulot vous propose : En exclusivité : Charmant appartement avec une terrasse et une place de parking couverte, situé dans le quartier de Mérignac Pichey. Dans une résidence de standing sécurisée de 2012, bel appartement de 63 m² en très bon état offrant un très grand séjour lumineux avec sa cuisine semi-ouverte, 2 chambres, une salle d'eau, un WC séparé et un cellier. Agencement très fonctionnel. Une agréable terrasse avec une vue dégagée sur la verdure vient compléter cet appartement. Vous disposez également d'une place de parking couverte pour garer votre véhicule en toute sécurité et d'un local à vélos. Venez découvrir cet appartement situé dans un cadre verdoyant avec la proximité des transports en commun (Bus 34,1, 51) et les commerces de proximité à seulement quelques minutes à pied. Le ravalement de la résidence est déjà voté donc pas à vos frais et il aura lieu cette année. La presente annonce immobiliere vise 2 lots situés dans une copropriété de 144 lots au total et ne faisant l'objet d'aucune procédure en cours citée à l'article L. 721-1 du code de la construction et de l'habitation. Montant moyen mensuel de charges déclaré par le vendeur : 91.67€ par mois (soit 1100 € annuel). Honoraires d'agence à la charge du vendeur. Information d'affichage énergétique sur ce bien : classe ENERGIE C indice 154 et classe CLIMAT A indice 4. Les informations sur les risques auxquels ce bien est exposé, y compris l'obligation légale de débroussaillement, sont disponibles sur le site Géorisques : http://www.georisques.gouv.fr. La présente annonce immobilière a été rédigée sous la responsabilité éditoriale de Mme Charlotte Coulot mandataire indépendant en immobilier (sans détention de fonds), agent commercial de la SAS I@D France immatriculé au RSAC de BORDEAUX sous le numéro 820912897, titulaire de la carte de démarchage immobilier pour le compte de la société I@D France SAS.
À proximité
Recherche des commodités à proximité...
Détails de l'annonce
Localisation
Ville
Mérignac
Pays
FR
Diagnostics / Énergie
Diagnostic DPE
154
Diagnostic GES
4
Surfaces / Pièces / Composition
Nombre d’étages
Chauffage et diagnostics
Diagnostic de performance énergétique (DPE)
a
b
c
d
e
f
g
Indice d'émission de gaz à effet de serre (GES)
a
b
c
d
e
f
g
