Type
Bien immobilierTarif
269 000 €Chambres
1Salles de bain
0Vente Appartement 2 pièces
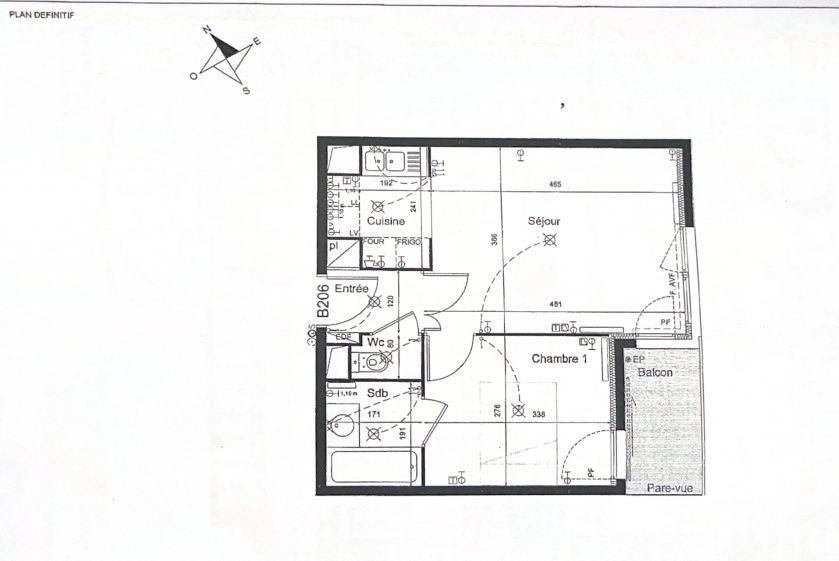
Iad France - Genevieve Carraud vous propose : Cachan – Centre-ville et transports à proximité À 10 minutes à pied du RER B et de la future ligne 15 du Grand Paris, cet appartement T2 bénéficie d’un emplacement recherché, au cOEur de Cachan, commerces et espaces verts à proximité. Un appartement lumineux et fonctionnel Situé au 2ᵉ étage d’une résidence de 2006 avec ascenseur, ce 2 pièces séduit par sa luminosité et son agencement pratique. Il offre : •Un séjour ouvert sur balcon, •Une cuisine conviviale, •Une chambre, •Une salle de bain et un WC séparé. Les atouts : •Balcon avec vue dégagée •Cuisine ouverte •Place de parking privative en sous-sol •Cave et local à vélos •Exposition sud-est. Classement DPE C à compter du 01 janvier 2026 (nouvelle règlementation) Cet appartement est idéal pour un premier achat ou un investissement locatif, offrant un cadre de vie agréable aux portes de Paris. À visiter rapidement ! Contactez moi dès maintenant pour organiser une visite ! La presente annonce immobiliere vise 3 lots situés dans une copropriété de 313 lots au total et ne faisant l'objet d'aucune procédure en cours citée à l'article L. 721-1 du code de la construction et de l'habitation. Montant moyen mensuel de charges déclaré par le vendeur : 168.67€ par mois (soit 2024 € annuel). Honoraires d'agence à la charge du vendeur. Information d'affichage énergétique sur ce bien : classe ENERGIE C indice 186 et classe CLIMAT C indice 11. Les informations sur les risques auxquels ce bien est exposé, y compris l'obligation légale de débroussaillement, sont disponibles sur le site Géorisques : http://www.georisques.gouv.fr. La présente annonce immobilière a été rédigée sous la responsabilité éditoriale de Mme Genevieve Carraud mandataire indépendant en immobilier (sans détention de fonds), agent commercial de la SAS I@D France immatriculé au RSAC de CRETEIL sous le numéro 949688758, titulaire de la carte de démarchage immobilier pour le compte de la société I@D France SAS.
À proximité
Recherche des commodités à proximité...
Détails de l'annonce
Localisation
Ville
Cachan
Pays
FR
Diagnostics / Énergie
Diagnostic DPE
186
Diagnostic GES
11
Surfaces / Pièces / Composition
Nombre d’étages
5
Étage
2
Chauffage et diagnostics
Diagnostic de performance énergétique (DPE)
a
b
c
d
e
f
g
Indice d'émission de gaz à effet de serre (GES)
a
b
c
d
e
f
g
