Type
Bien immobilierTarif
423 000 €Chambres
5Salles de bain
0Vente Appartement 7 pièces
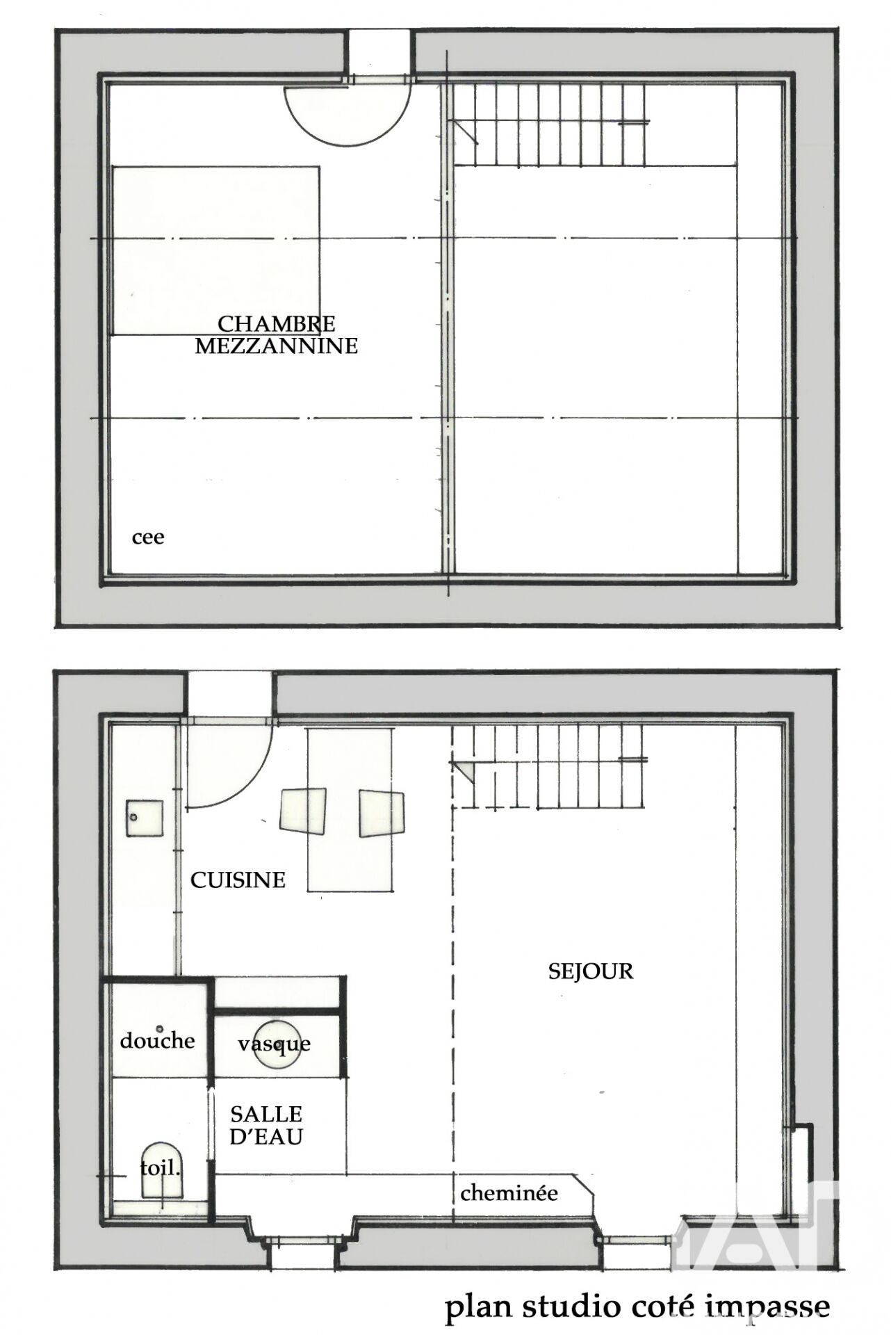
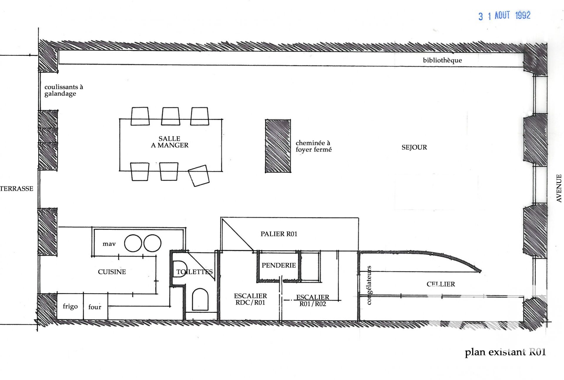
Iad France - Monia Ruccione vous propose : Marseille 10ᵉ – Quartier La Capelette – Superbe appartement de 187 m² avec terrasse de 100 m². Le bien se compose de deux espaces distincts : une habitation principale et un studio indépendant, permettant de nombreuses possibilités (famille, location, profession libérale, colocation…). Habitation principale : Vous découvrirez une belle pièce de vie lumineuse regroupant salon, salle à manger et cuisine dans un même espace convivial. À l’étage, l’espace nuit comprend : •4 chambres, dont 2 avec mezzanine •1 salle de bain •1 salle d’eau avec douche •1 WC indépendant Studio indépendant : Au fond de la terrasse se trouve un studio totalement indépendant, comprenant : •un salon avec cuisine ouverte •une salle d’eau avec douche et WC •une mezzanine servant de chambre Idéal pour accueillir un proche, un adolescent, un étudiant. Extérieur : Vous profiterez d’une magnifique terrasse d’environ 100 m², véritable espace de vie supplémentaire, parfaite pour les repas en extérieur, les moments en famille ou entre amis, avec accès direct au studio situé au fond de la terrasse. Prestations et environnement : •Fibre optique •Interphone •Appartement lumineux •Proche transports, commerces, écoles et axes autoroutiers •À quelques minutes du centre-ville de Marseille. Patinoire Palais Omnisports Un bien rare par sa superficie, sa configuration et son potentiel, à visiter sans tarder. Honoraires d'agence à la charge du vendeur. Information d'affichage énergétique sur ce bien : classe ENERGIE C indice 154 et classe CLIMAT C indice 25. Les informations sur les risques auxquels ce bien est exposé, y compris l'obligation légale de débroussaillement, sont disponibles sur le site Géorisques : http://www.georisques.gouv.fr. La présente annonce immobilière a été rédigée sous la responsabilité éditoriale de Mme Monia Ruccione mandataire indépendant en immobilier (sans détention de fonds), agent commercial de la SAS I@D France immatriculé au RSAC de MARSEILLE sous le numéro 952418473, titulaire de la carte de démarchage immobilier pour le compte de la société I@D France SAS.
Cette semaine
Cette annonce est récente
À proximité
Recherche des commodités à proximité...
Détails de l'annonce
Localisation
Ville
Marseille
Pays
FR
Diagnostics / Énergie
Diagnostic DPE
154
Diagnostic GES
25
Chauffage et diagnostics
Diagnostic de performance énergétique (DPE)
a
b
c
d
e
f
g
Indice d'émission de gaz à effet de serre (GES)
a
b
c
d
e
f
g
