Type
Bien immobilierTarif
227 500 €Chambres
2Salles de bain
0Vente Appartement 3 pièces
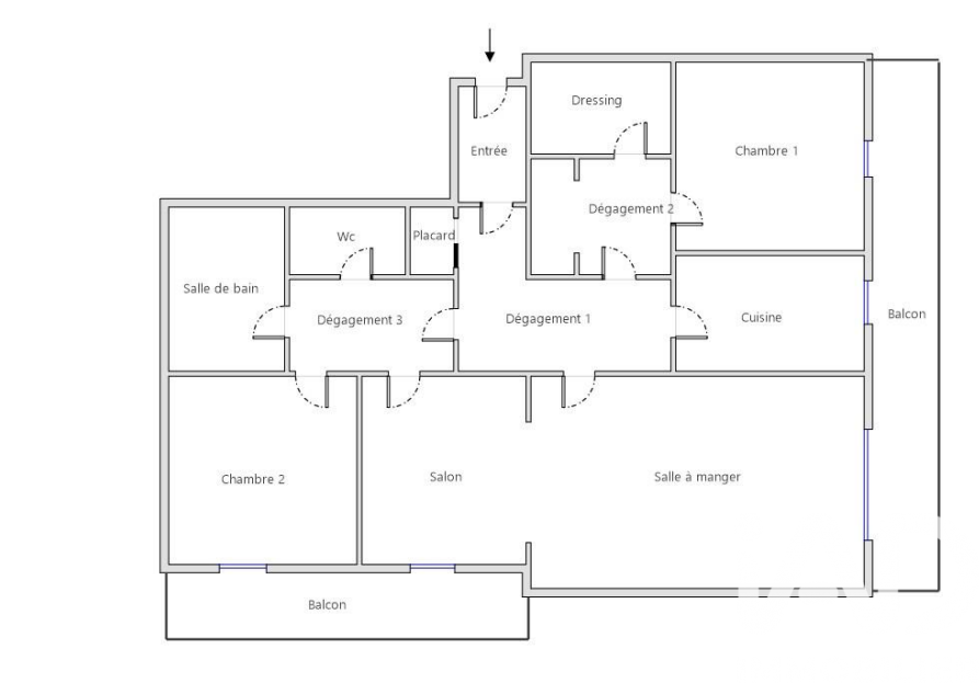
Iad France - Nicolas Levasseur vous propose : Appartement à Saint-Nazaire - Travaux à prévoir Découvrez cet appartement situé au 7ème étage d'une résidence de 10 niveaux à Saint-Nazaire. Avec une surface de 86.56 m², cet appartement offre un espace de vie lumineux et confortable pour une famille. De plus, un garage privatif est inclus ainsi qu'une cave. Ce bien nécessite des travaux de rénovation pour refléter tout son potentiel. L'emplacement stratégique de cet appartement en fait un investissement idéal, alliant praticité et potentiel d'évolution. Certaines photos ont été améliorés par l'IA. Ne ratez pas cette opportunité d'acquérir un appartement avec une vue imprenable et un potentiel de rénovation infini. Contactez moidès maintenant pour organiser une visite La presente annonce immobiliere vise 3 lots situés dans une copropriété de 3 lots au total et ne faisant l'objet d'aucune procédure en cours citée à l'article L. 721-1 du code de la construction et de l'habitation. Montant moyen mensuel de charges déclaré par le vendeur : 133.33€ par mois (soit 1600 € annuel). Honoraires d'agence à la charge de l'acquéreur. Prix honoraires inclus : 227500 euros. Prix hors honoraires : 220000 euros. Honoraires TTC à la charge de l'acquéreur (3,41% du prix du bien hors honoraires) : 7500 euros. Information d'affichage énergétique sur ce bien : classe ENERGIE D indice 177 et classe CLIMAT D indice 35. Les informations sur les risques auxquels ce bien est exposé, y compris l'obligation légale de débroussaillement, sont disponibles sur le site Géorisques : http://www.georisques.gouv.fr. La présente annonce immobilière a été rédigée sous la responsabilité éditoriale de M Nicolas Levasseur mandataire indépendant en immobilier (sans détention de fonds), agent commercial de la SAS I@D France immatriculé au RSAC de SAINT NAZAIRE sous le numéro 789153624, titulaire de la carte de démarchage immobilier pour le compte de la société I@D France SAS.
À proximité
Recherche des commodités à proximité...
Détails de l'annonce
Localisation
Ville
Saint-Nazaire
Pays
FR
Diagnostics / Énergie
Diagnostic DPE
177
Diagnostic GES
35
Finances / Mandat / Références
Honoraires
7 €
Surfaces / Pièces / Composition
Nombre d’étages
10
Étage
7
Chauffage et diagnostics
Diagnostic de performance énergétique (DPE)
a
b
c
d
e
f
g
Indice d'émission de gaz à effet de serre (GES)
a
b
c
d
e
f
g
