Type
Bien immobilierTarif
325 000 €Chambres
2Salles de bain
0Vente Maison/villa 5 pièces
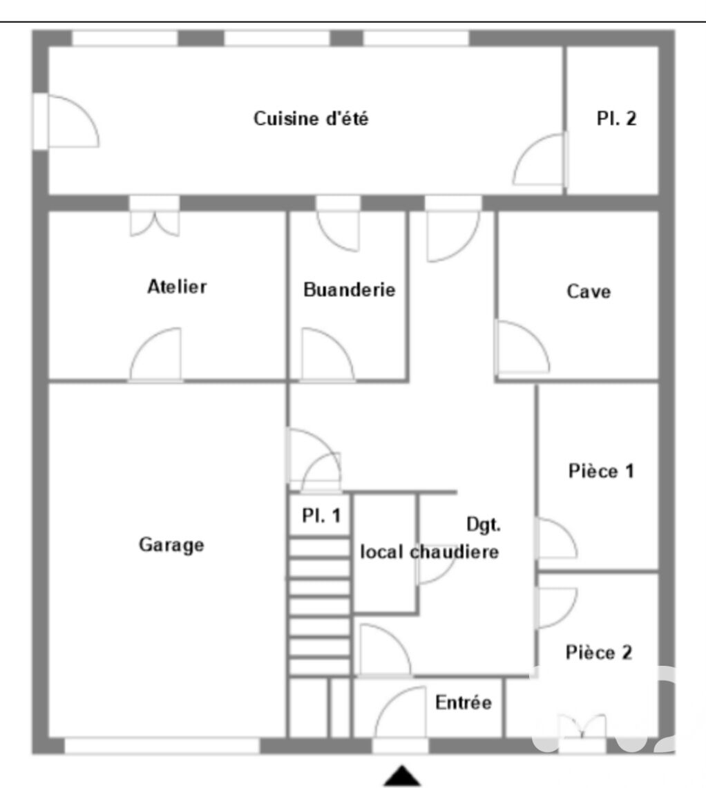
Iad France - Tony Da Costa Vilas Boas vous propose : EXCLUSIVITÉ – Roissy-en-Brie – Quartier du Verger Maison familiale à rafraîchir – 105 m² – Terrain 377 m² – Potentiel d’évolution Dans un secteur recherché de Roissy-en-Brie, découvrez cette maison de 1965, implantée sur un terrain de 377 m². Une maison familiale offrant de beaux volumes et un potentiel d’agrandissement rare. Le rez-de-chaussée surélevé propose un séjour traversant avec accès à une grande terrasse, une salle à manger avec balcon, une cuisine indépendante, deux chambres de 10 m² et 12,5 m², une salle de bain et un WC indépendant. L’exposition Est–Ouest assure une belle luminosité tout au long de la journée. Les combles constituent un véritable atout : dalle béton, hauteur centrale de 2,77 m et environ 35 m² à plus d’1,80 m, permettant la création de deux chambres supplémentaires et d’une salle d’eau. Le rez-de-jardin (hauteur sous plafond 2,10 m) offre des espaces modulables : garage de 20 m², cuisine d’été de 18 m² avec accès direct au jardin, deux pièces polyvalentes (chambres, bureau, salle de jeux…), ainsi qu’une cave, une buanderie et un atelier. À l’extérieur, vous profitez d’un jardin agréable, d’un passage latéral, d’un chalet de jardin et d’une piscine hors sol. Prestations : double vitrage, volets roulants électriques, chauffage au gaz avec chaudière. Maison à rafraîchir, idéale pour une famille souhaitant personnaliser les espaces et valoriser un bien avec un vrai potentiel d’évolution. Une visite s’impose. Honoraires d'agence à la charge du vendeur. Information d'affichage énergétique sur ce bien : classe ENERGIE E indice 328 et classe CLIMAT E indice 62. Les informations sur les risques auxquels ce bien est exposé, y compris l'obligation légale de débroussaillement, sont disponibles sur le site Géorisques : http://www.georisques.gouv.fr. La présente annonce immobilière a été rédigée sous la responsabilité éditoriale de M Tony Da Costa Vilas Boas mandataire indépendant en immobilier (sans détention de fonds), agent commercial de la SAS I@D France immatriculé au RSAC de MELUN sous le numéro 911747566, titulaire de la carte de démarchage immobilier pour le compte de la société I@D France SAS.
Cette semaine
Cette annonce est récente
À proximité
Recherche des commodités à proximité...
Détails de l'annonce
Localisation
Ville
Roissy-en-Brie
Pays
FR
Diagnostics / Énergie
Diagnostic DPE
328
Diagnostic GES
62
Surfaces / Pièces / Composition
Nombre d’étages
3
Chauffage et diagnostics
Diagnostic de performance énergétique (DPE)
a
b
c
d
e
f
g
Indice d'émission de gaz à effet de serre (GES)
a
b
c
d
e
f
g
