Type
Bien immobilierTarif
280 000 €Chambres
2Salles de bain
0Vente Appartement 3 pièces
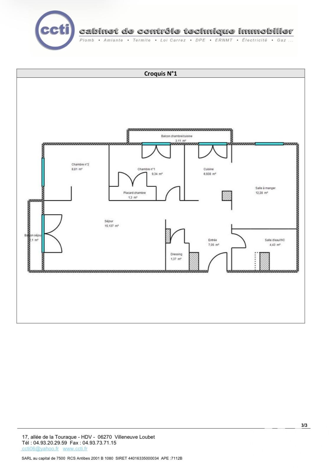
Iad France - Colomba Sulpice vous propose : * Appartement rénové 3 pièces à deux pas de la mer - Square du Lys, Juan Les Pins * Découvrez cet appartement de 67 m² situé au cOEur de Juan Les Pins et à 50 mètres des plages, au 3ème étage sur 5 avec ascenseur, qui offre un cadre de vie idéal à ses futurs occupants. Il se compose d'une entrée généreuse avec placard, une cuisine entièrement équipée ouverte sur la salle à manger, un séjour de 15 m², deux chambres avec placards, une salle de douche avec toilette et deux balcons, un attenant au séjour et l'autre a la cuisine. Une cave complète ce bien. Possibilité d'acquérir en supplément un garage ! Ce bien bénéficie d'une situation géographique idéale, à proximité des commodités et offrant un accès facile aux transports en commun. Idéal pour investissement locatif ! Ne manquez pas l'opportunité de visiter ce bien, contactez-moi pour plus d'informations et / ou organiser une visite. La presente annonce immobiliere vise 3 lots situés dans une copropriété de 67 lots au total et ne faisant l'objet d'aucune procédure en cours citée à l'article L. 721-1 du code de la construction et de l'habitation. Montant moyen mensuel de charges déclaré par le vendeur : 170€ par mois (soit 2040 € annuel). Honoraires d'agence à la charge du vendeur. Information d'affichage énergétique sur ce bien : classe ENERGIE E indice 182 et classe CLIMAT E indice 56. Les informations sur les risques auxquels ce bien est exposé, y compris l'obligation légale de débroussaillement, sont disponibles sur le site Géorisques : http://www.georisques.gouv.fr. La présente annonce immobilière a été rédigée sous la responsabilité éditoriale de Mme Colomba Sulpice mandataire indépendant en immobilier (sans détention de fonds), agent commercial de la SAS I@D France immatriculé au RSAC de Cannes sous le numéro 943182436, titulaire de la carte de démarchage immobilier pour le compte de la société I@D France SAS.
À proximité
Recherche des commodités à proximité...
Détails de l'annonce
Localisation
Ville
Antibes
Pays
FR
Diagnostics / Énergie
Diagnostic DPE
182
Diagnostic GES
56
Surfaces / Pièces / Composition
Nombre d’étages
5
Étage
3
Chauffage et diagnostics
Diagnostic de performance énergétique (DPE)
a
b
c
d
e
f
g
Indice d'émission de gaz à effet de serre (GES)
a
b
c
d
e
f
g
