Type
Bien immobilierTarif
99 500 €Chambres
0Salles de bain
0Vente Boutique/Local commercial 75 m²
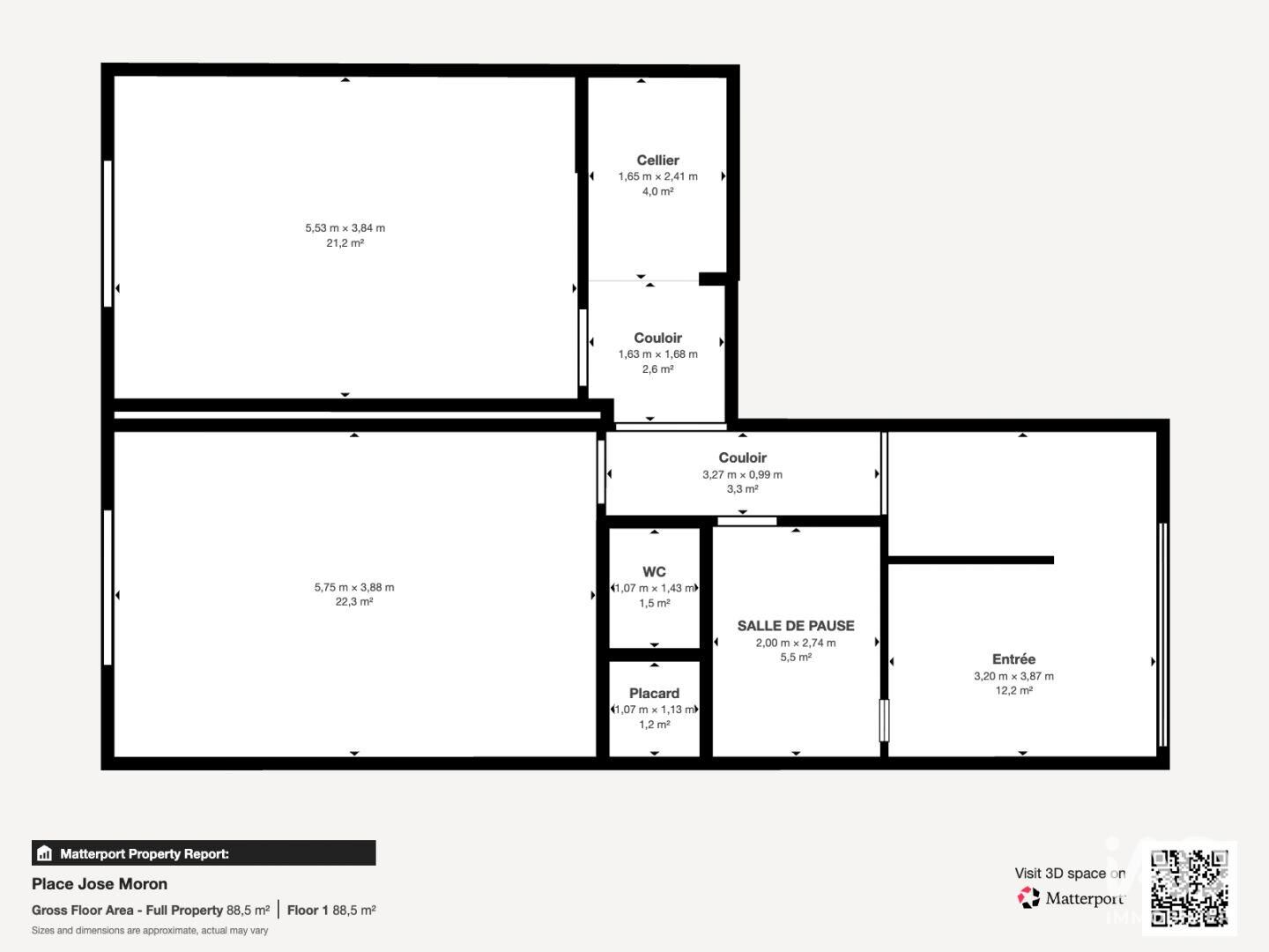
Iad France - Igor Medjean (06 26 82 28 20) vous propose : Local commercial ou bureaux – 75 m² environ – Place José Moron Idéalement situé place José Moron, ce local de 75 m² environ offre une excellente visibilité grâce à sa vitrine de 3,80 m donnant directement sur la place. Le bien se compose de : - Une pièce d’entrée pouvant parfaitement faire office de salle d’attente ou d’accueil - Une salle de pause - Une première pièce de 21 m² environ - Une seconde pièce de 22 m² environ - Un WC indépendant - Un cellier La distribution des espaces permet une organisation fonctionnelle, parfaitement adaptée à une activité de bureaux, médicale, paramédicale ou toute activité tertiaire. La visibilité commerciale et la configuration intérieure constituent de véritables atouts pour l’installation de votre activité. Une visite virtuelle est disponible directement dans l’annonce afin de découvrir le local à distance et vous projeter facilement. Local disponible rapidement. Pour plus d’informations ou organiser une visite, contactez-moi. Information d'affichage énergétique sur le bien associé à cette annonce : classe ENERGIE D indice 255 et classe CLIMAT B indice 7. La présente annonce immobilière a été rédigée sous la responsabilité éditoriale de M. Igor Medjean (ID 22405), Agent Commercial mandataire en immobilier immatriculé au Registre Spécial des Agents Commerciaux (RSAC) du Tribunal de Commerce de AUXERRE sous le numéro 498189828 Retrouvez tous nos biens sur notre site internet. www.iadfrance.fr.
Ce mois
Cette annonce est récente
À proximité
Recherche des commodités à proximité...
Détails de l'annonce
Localisation
Ville
Riom
Pays
FR
Diagnostics / Énergie
Diagnostic DPE
255
Diagnostic GES
7
Surfaces / Pièces / Composition
Nombre d’étages
Chauffage et diagnostics
Diagnostic de performance énergétique (DPE)
a
b
c
d
e
f
g
Indice d'émission de gaz à effet de serre (GES)
a
b
c
d
e
f
g
