Type
Bien immobilierTarif
130 000 €Chambres
4Salles de bain
0Vente Maison/villa 6 pièces
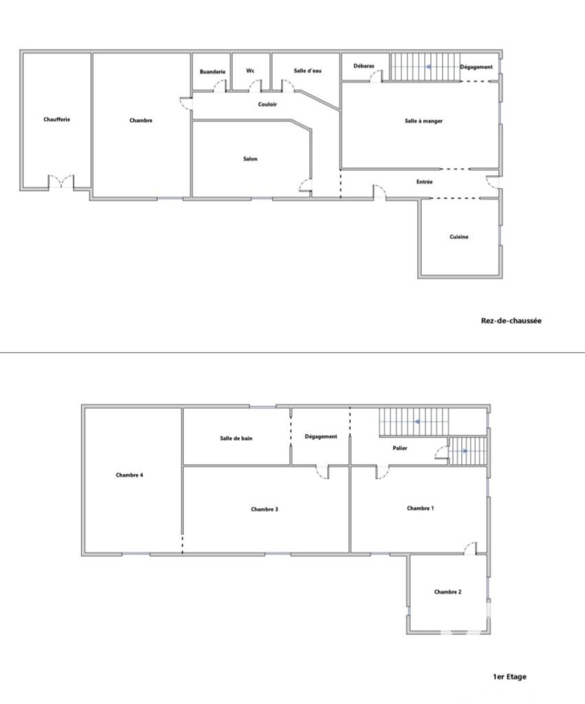
Iad France - Marie Charton vous propose : Charmante Maison située à Scey-sur-Saône-et-Saint-Albin. Au cOEur de Scey-sur-Saône-et-Saint-Albin, découvrez cette maison sur 2 étages offrant un cadre de vie chaleureux. Avec une surface habitable d'environ 173 m², cette propriété spacieuse est parfaite pour une grande famille en quête de tranquillité ou la possibilité de réaliser deux appartements. Une mitoyenneté est existante d'un côté au niveau de la chaufferie. Classement énergétique en C. Au rez-de-chaussée, vous trouverez une cuisine, un salon, une salle à manger conviviale, une chambre, une salle d'eau, une buanderie, un WC et cour intérieure avec terrasse offrant un espace extérieur privilégié pour profiter des douces soirées. L'étage supérieur se compose de 3 belles chambres lumineuses, une pièce pour du rangement ou seconde cuisine et une salle de bain. La maison est en bon état général où il fait bon vivre. Le garage vous permettra de stationner votre véhicule en toute sécurité. Les équipements de cette maison sont : fibre optique, VMC double flux, pompe à chaleur, radiateurs, panneau solaire et aérothermique, isolation par l'intérieur des murs et grenier récemment assurant une bonne performance énergétique. Bien que des travaux de rafraichissement puissent être envisagés pour personnaliser davantage les lieux, la maison présente un excellent potentiel pour en faire un véritable cocon familial à votre image ou deux appartements selon votre projet. Située dans un quartier calme, à proximité des commodités locales, des écoles et des transports, cette maison saura combler vos attentes en matière de confort et de qualité de vie pour vous et votre famille. Ne manquez pas l'opportunité d'acquérir ce bien exceptionnel à Scey-sur-Saône-et-Saint-Albin. Contactez-nous dès maintenant pour organiser une visite et laissez-vous séduire par le charme unique de cette propriété. Honoraires d'agence à la charge du vendeur. Information d'affichage énergétique sur ce bien : classe ENERGIE C indice 133 et classe CLIMAT C indice 23. Les informations sur les risques auxquels ce bien est exposé, y compris l'obligation légale de débroussaillement, sont disponibles sur le site Géorisques : http://www.georisques.gouv.fr. La présente annonce immobilière a été rédigée sous la responsabilité éditoriale de Mme Marie Charton mandataire indépendant en immobilier (sans détention de fonds), agent commercial de la SAS I@D France immatriculé au RSAC de VESOUL sous le numéro 991249608, titulaire de la carte de démarchage immobilier pour le compte de la société I@D France SAS.
Cette semaine
Cette annonce est récente
À proximité
Recherche des commodités à proximité...
Détails de l'annonce
Localisation
Ville
Scey-sur-Saône-Et-Saint-Albin
Pays
FR
Diagnostics / Énergie
Diagnostic DPE
133
Diagnostic GES
23
Surfaces / Pièces / Composition
Nombre d’étages
2
Chauffage et diagnostics
Diagnostic de performance énergétique (DPE)
a
b
c
d
e
f
g
Indice d'émission de gaz à effet de serre (GES)
a
b
c
d
e
f
g
